yituLogo
当前的位置:首页 > 室内CAD图纸 > cad > 公共区间 > 文体医疗 > 县人民医院业务用房扩建项目

图纸介绍

空间划分:成套医院                                           功能类型:医院门诊,医院住院

图纸深度:竣工图                                               项目位置:贵州

设计风格:现代风格                                            图纸格式:CAD2000

设计时间:2012

内容简介:

[贵州]基-丹寨医院项目图纸+招标文件。采用现代的设计风格,对文体医疗进行初步设计,加强景观细部设计,促进城市化发展,加强基础设施建设和安全建设,便利居民生活,使医院得到更好发展。

 

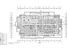
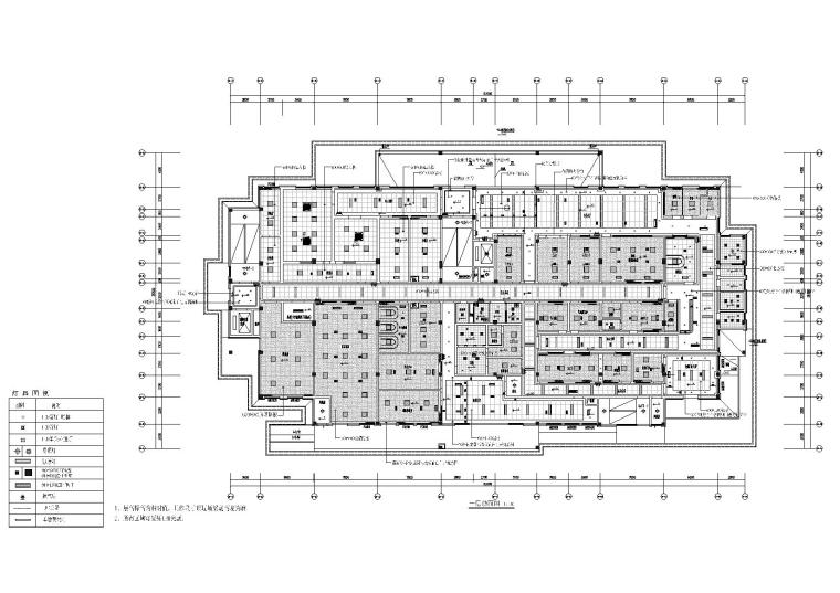
一层<a href=https://www.yitu.cn/su/7392.html target=_blank class=infotextkey>平面</a>布置图

 

一层平面布置图

 

一层天<a href=https://www.yitu.cn/sketchup/huayi/index.html target=_blank class=infotextkey>花</a>图

 

一层天

 

二层<a href=https://www.yitu.cn/su/7872.html target=_blank class=infotextkey>地</a>坪,材料图

 

二层坪,材料图

 

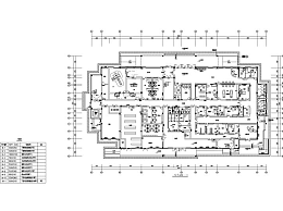
二层<a href=https://www.yitu.cn/su/7392.html target=_blank class=infotextkey>平面</a>图

 

二层平面

 

二层天<a href=https://www.yitu.cn/sketchup/huayi/index.html target=_blank class=infotextkey>花</a>图

 

二层天

 

一层<a href=https://www.yitu.cn/su/7872.html target=_blank class=infotextkey>地</a>坪,材料图

 

一层坪,材料图

 

一层门诊<a href=https://www.yitu.cn/su/7996.html target=_blank class=infotextkey>大厅</a>立面图

 

一层门诊大厅立面图

 

一层医生办公立面图

 

一层医生办公立面图

 

二层传染A病房立面图

 

二层传染A病房立面图

 

一层B超办公立面图

 

一层B超办公立面图

县人民医院业务用房扩建项目

ID:17049
软     件:sketchup 大     小:111.20MB 上 传 时 间:20191105 消 耗 积 分:30
  • 收藏 ()
  • 评论 ()
  • ⚠图纸报错

strawberry 普通会员

UI社UI社UI社UI社UI社UI社UI社UI社UI社UI社UI社UI社UI社
关注
SU模型、3D模型、贴图、材质、CAD施工图素材:

su模型,su素材库,3d模型,3d模型库,3d模型下载,3d模型素材,3dmax模型免费下载,cad施工图纸,3d材质贴图,沙发SU模型,椅凳SU模型,柜类SU模型,厨卫SU模型,3D沙发模型,3D陈设饰品,3D柜类模型,3D家装空间,家装CAD图纸,CAD图库,CAD节点详图,橱柜衣柜CAD图纸,CAD施工图,居住建筑效果图,工业建筑效果图,公共建筑效果图

友情链接 热门模型 免费模型