yituLogo
当前的位置:首页 > 室内CAD图纸 > cad > 公共区间 > 文体医疗 > 现代风格整形医院室内设计施工图

图纸介绍

空间划分:成套医院                                              功能类型:医院门诊

图纸深度:方案(初设图)                                        项目位置:新疆

设计风格:现代风格                                              图纸格式:CAD2000

图纸张数:100张                                                   设计时间:2015

包含图片:效果图

内容简介:

现代风格整形医院室内设计施工图(含效果图及设计说明。采用现代的设计风格,对效果图25张(原始图、布置图、天图、灯具尺寸图、铺图)立面图(大厅接待室、休息室、咨询室、换药室、影像室、卫生间)进行初步设计

 

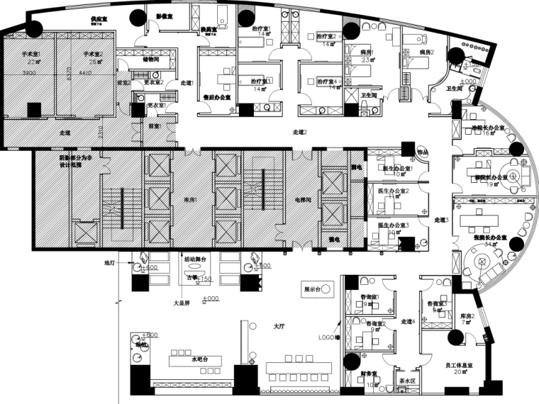
现代风格整形<a href=https://www.yitu.cn/sketchup/yiyuan/index.html target=_blank class=infotextkey><a href=https://www.yitu.cn/su/7276.html target=_blank class=infotextkey>医院</a></a>室内<a href=https://www.yitu.cn/su/7590.html target=_blank class=infotextkey>设计</a><a href=https://www.yitu.cn/su/7392.html target=_blank class=infotextkey>平面</a>图

 

现代风格整形医院室内设计平面

 

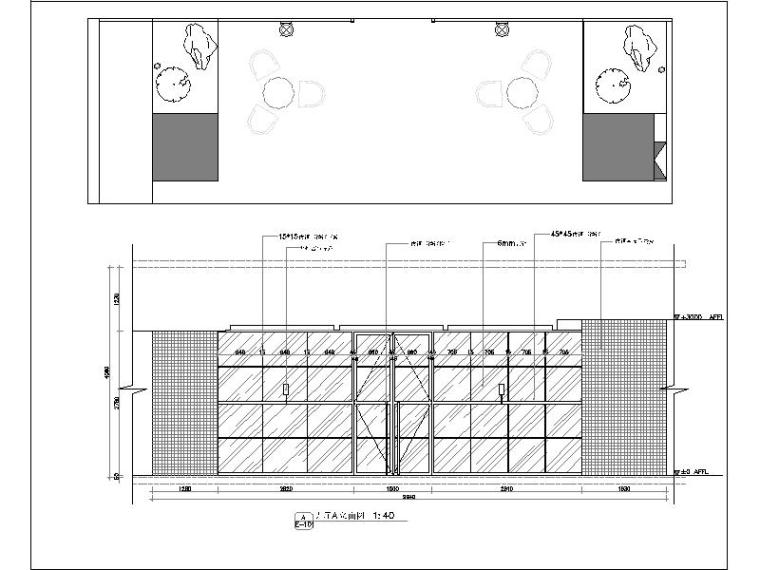
现代风格整形<a href=https://www.yitu.cn/sketchup/yiyuan/index.html target=_blank class=infotextkey><a href=https://www.yitu.cn/su/7276.html target=_blank class=infotextkey>医院</a></a>室内<a href=https://www.yitu.cn/su/7590.html target=_blank class=infotextkey>设计</a>立面图

 

现代风格整形医院室内设计立面图

 

现代风格整形<a href=https://www.yitu.cn/sketchup/yiyuan/index.html target=_blank class=infotextkey><a href=https://www.yitu.cn/su/7276.html target=_blank class=infotextkey>医院</a></a>室内<a href=https://www.yitu.cn/su/7590.html target=_blank class=infotextkey>设计</a>立面图

 

现代风格整形医院室内设计立面图

 

现代风格整形<a href=https://www.yitu.cn/sketchup/yiyuan/index.html target=_blank class=infotextkey><a href=https://www.yitu.cn/su/7276.html target=_blank class=infotextkey>医院</a></a>室内<a href=https://www.yitu.cn/su/7590.html target=_blank class=infotextkey>设计</a>立面图

 

现代风格整形医院室内设计立面图

 

现代风格整形<a href=https://www.yitu.cn/sketchup/yiyuan/index.html target=_blank class=infotextkey><a href=https://www.yitu.cn/su/7276.html target=_blank class=infotextkey>医院</a></a>室内<a href=https://www.yitu.cn/su/7590.html target=_blank class=infotextkey>设计</a>效果图

 

现代风格整形医院室内设计效果图

 

现代风格整形<a href=https://www.yitu.cn/sketchup/yiyuan/index.html target=_blank class=infotextkey><a href=https://www.yitu.cn/su/7276.html target=_blank class=infotextkey>医院</a></a>室内<a href=https://www.yitu.cn/su/7590.html target=_blank class=infotextkey>设计</a>效果图

 

现代风格整形医院室内设计效果图

 

现代风格整形<a href=https://www.yitu.cn/sketchup/yiyuan/index.html target=_blank class=infotextkey><a href=https://www.yitu.cn/su/7276.html target=_blank class=infotextkey>医院</a></a>室内<a href=https://www.yitu.cn/su/7590.html target=_blank class=infotextkey>设计</a>效果图

 

现代风格整形医院室内设计效果图

 

现代风格整形<a href=https://www.yitu.cn/sketchup/yiyuan/index.html target=_blank class=infotextkey><a href=https://www.yitu.cn/su/7276.html target=_blank class=infotextkey>医院</a></a>室内<a href=https://www.yitu.cn/su/7590.html target=_blank class=infotextkey>设计</a>效果图

 

现代风格整形医院室内设计效果图

现代风格整形医院室内设计施工图

ID:17040
软     件:sketchup 大     小:89.30MB 上 传 时 间:20191105 消 耗 积 分:30
  • 收藏 ()
  • 评论 ()
  • ⚠图纸报错

strawberry 普通会员

UI社UI社UI社UI社UI社UI社UI社UI社UI社UI社UI社UI社UI社
关注
SU模型、3D模型、贴图、材质、CAD施工图素材:

su模型,su素材库,3d模型,3d模型库,3d模型下载,3d模型素材,3dmax模型免费下载,cad施工图纸,3d材质贴图,沙发SU模型,椅凳SU模型,柜类SU模型,厨卫SU模型,3D沙发模型,3D陈设饰品,3D柜类模型,3D家装空间,家装CAD图纸,CAD图库,CAD节点详图,橱柜衣柜CAD图纸,CAD施工图,居住建筑效果图,工业建筑效果图,公共建筑效果图

友情链接 热门模型 免费模型