yituLogo
当前的位置:首页 > 室内CAD图纸 > cad > 公共区间 > 文体医疗 > 知名激光整形美容医院室内施工图

图纸介绍

项目位置:北京                                         图纸格式:CAD2000

图纸深度:施工图                                     设计风格:现代风格

图纸张数:140张                                       设计时间:2012

层数:1-3层                                           空间划分:成套医院

功能类型:其他

内容简介:

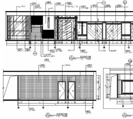
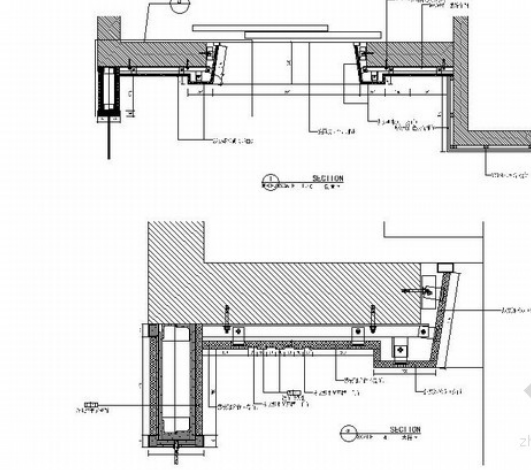
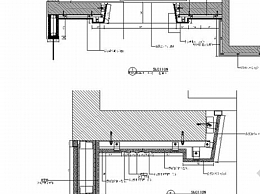
[北京]知名激光整形美容医院室内施工图。采用现代的设计风格,对门表、1-3层(平面图、天图、灯具图、坪图、尺寸图、索引图、电气图、给排图、空调图);立面图(过道、大厅、公共卫生间办公室、治疗室、档案室、照相室等进行初步设计

 

[北京]知名激光整形美容<a href=https://www.yitu.cn/sketchup/yiyuan/index.html target=_blank class=infotextkey><a href=https://www.yitu.cn/su/7276.html target=_blank class=infotextkey>医院</a></a>室内施工图

图1

 

 

图2

 

 

图3

 

 

图5

 

图4

 

图6

 

图5

 

图7

 

图6

 

图8

 

图7

 

图9

 

图8

知名激光整形美容医院室内施工图

ID:17064
软     件:sketchup 大     小:14.90MB 上 传 时 间:20191105 消 耗 积 分:30
  • 收藏 ()
  • 评论 ()
  • ⚠图纸报错

strawberry 普通会员

UI社UI社UI社UI社UI社UI社UI社UI社UI社UI社UI社UI社UI社
关注
SU模型、3D模型、贴图、材质、CAD施工图素材:

su模型,su素材库,3d模型,3d模型库,3d模型下载,3d模型素材,3dmax模型免费下载,cad施工图纸,3d材质贴图,沙发SU模型,椅凳SU模型,柜类SU模型,厨卫SU模型,3D沙发模型,3D陈设饰品,3D柜类模型,3D家装空间,家装CAD图纸,CAD图库,CAD节点详图,橱柜衣柜CAD图纸,CAD施工图,居住建筑效果图,工业建筑效果图,公共建筑效果图

友情链接 热门模型 免费模型