yituLogo
当前的位置:首页 > 室内CAD图纸 > cad > 公共区间 > 文体医疗 > 长沙县人民医院建设项目图纸

图纸介绍

空间划分:成套医院,病房                                                功能类型:医院门诊,医院住院,医院附属用房

图纸深度:施工图                                                            项目位置:湖南

图纸格式:CAD2000                                                       层数:4层

内容简介:

长沙县医院建设项目室内装饰工程施工。采用现代的设计风格,对附属用房室内装饰工程图纸、感染内装饰工程图纸、门诊医技病房内装饰工程图纸、电气施工图等进行初步设计,加强景观细部设计

 

1感染<a href=https://www.yitu.cn/su/8159.html target=_blank class=infotextkey>楼</a>一层<a href=https://www.yitu.cn/su/7392.html target=_blank class=infotextkey>平面</a>图

 

感染一层平面

 

2感染<a href=https://www.yitu.cn/su/8159.html target=_blank class=infotextkey>楼</a>二层<a href=https://www.yitu.cn/su/7392.html target=_blank class=infotextkey>平面</a>图

 

感染二层平面

 

3感染<a href=https://www.yitu.cn/su/8159.html target=_blank class=infotextkey>楼</a>三层<a href=https://www.yitu.cn/su/7392.html target=_blank class=infotextkey>平面</a>图

 

感染三层平面

 

4感染<a href=https://www.yitu.cn/su/8159.html target=_blank class=infotextkey>楼</a>四层<a href=https://www.yitu.cn/su/7392.html target=_blank class=infotextkey>平面</a>图

 

感染四层平面

 

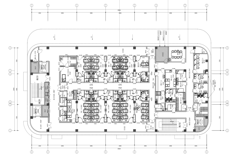
1一层A区<a href=https://www.yitu.cn/su/7392.html target=_blank class=infotextkey>平面</a>布置图

 

一层A区平面布置图

 

2一层A区顶面图

 

一层A区顶面图

 

3一层A区<a href=https://www.yitu.cn/su/7872.html target=_blank class=infotextkey>地</a>面图

 

一层A区面图

 

4一层A区立面图

 

一层A区立面图

长沙县人民医院建设项目图纸

ID:17034
软     件:sketchup 大     小:477.50MB 上 传 时 间:20191105 消 耗 积 分:30
  • 收藏 ()
  • 评论 ()
  • ⚠图纸报错

strawberry 普通会员

UI社UI社UI社UI社UI社UI社UI社UI社UI社UI社UI社UI社UI社
关注
SU模型、3D模型、贴图、材质、CAD施工图素材:

su模型,su素材库,3d模型,3d模型库,3d模型下载,3d模型素材,3dmax模型免费下载,cad施工图纸,3d材质贴图,沙发SU模型,椅凳SU模型,柜类SU模型,厨卫SU模型,3D沙发模型,3D陈设饰品,3D柜类模型,3D家装空间,家装CAD图纸,CAD图库,CAD节点详图,橱柜衣柜CAD图纸,CAD施工图,居住建筑效果图,工业建筑效果图,公共建筑效果图

友情链接 热门模型 免费模型