yituLogo
当前的位置:首页 > 室内CAD图纸 > cad > 家装图纸 > 别墅大宅 > 3层新农村独院式CAD别墅施工图

图纸介绍

别墅类型:独栋别墅                            高度类别:多层建筑

设计风格:现代风格                            结构形式:钢筋混凝土结构

图纸深度:施工图

内容简介:

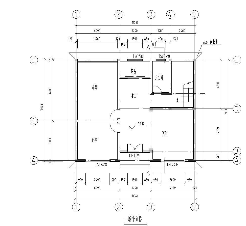
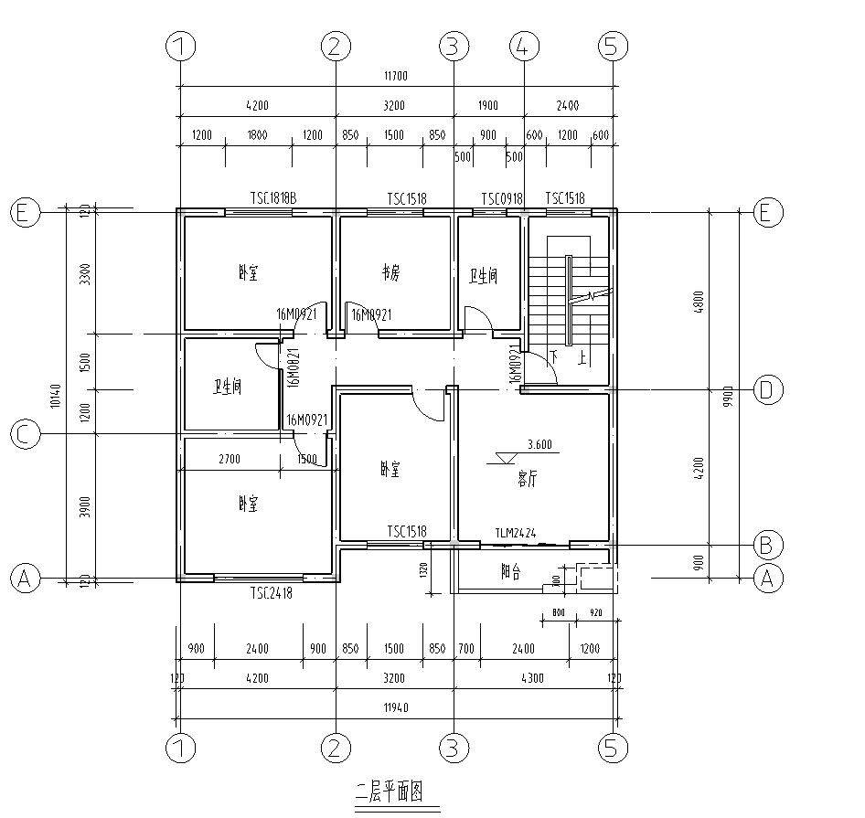
3层新农村独院式CAD别墅施工图目录:别墅占面积为120平方米、建筑面积为301平方米,建筑高度11.45米。一层设有客厅餐厅厨房卧室卫生间、车库,二层带有阳台,设有2件卧室、2间卫生间书房,三层设有房间功能自定、2个大露台。

部分资料展示:

 

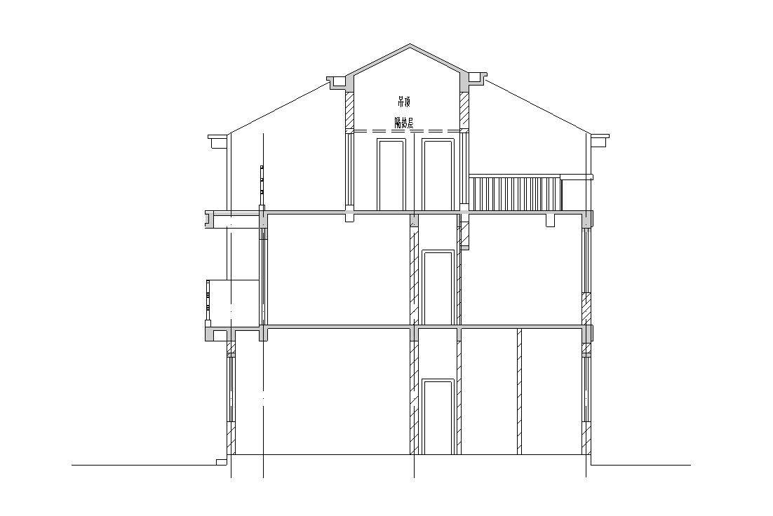
01立面图

 

立面图

 

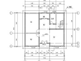
一层<a href=https://www.yitu.cn/su/7392.html target=_blank class=infotextkey>平面</a>图

 

一层平面

 

二层<a href=https://www.yitu.cn/su/7392.html target=_blank class=infotextkey>平面</a>图

 

二层平面

 

基础<a href=https://www.yitu.cn/su/7392.html target=_blank class=infotextkey>平面</a>图

 

基础平面

 

南立面图

 

南立面图

 

三层<a href=https://www.yitu.cn/su/7392.html target=_blank class=infotextkey>平面</a>图

 

三层平面

 

屋顶<a href=https://www.yitu.cn/su/7392.html target=_blank class=infotextkey>平面</a>图

 

屋顶平面

 

屋面<a href=https://www.yitu.cn/su/7392.html target=_blank class=infotextkey>平面</a>图

 

屋面平面

3层新农村独院式CAD别墅施工图

ID:15784
软     件:sketchup 大     小:2.90MB 上 传 时 间:20191023 消 耗 积 分:30
  • 收藏 ()
  • 评论 ()
  • ⚠图纸报错

qianqian 普通会员

关注
  • 户外垃圾桶
  • 户外垃圾桶
  • 户外垃圾桶
SU模型、3D模型、贴图、材质、CAD施工图素材:

su模型,su素材库,3d模型,3d模型库,3d模型下载,3d模型素材,3dmax模型免费下载,cad施工图纸,3d材质贴图,沙发SU模型,椅凳SU模型,柜类SU模型,厨卫SU模型,3D沙发模型,3D陈设饰品,3D柜类模型,3D家装空间,家装CAD图纸,CAD图库,CAD节点详图,橱柜衣柜CAD图纸,CAD施工图,居住建筑效果图,工业建筑效果图,公共建筑效果图

友情链接 热门模型 免费模型