yituLogo
当前的位置:首页 > 室内CAD图纸 > cad > 家装图纸 > 别墅大宅 > 欧陆风格3层独栋别墅建筑施工图

图纸介绍

别墅类型:独栋别墅                             高度类别:多层建筑

设计风格:新中式风格                         结构形式:钢筋混凝土结构

外立面材料:材                               图纸深度:施工图

内容简介:

欧陆风格3层独栋别墅建筑施工图目录:别墅占面积为191.5平米,总建筑面积为1477.8平米,建筑高度为11.31米,一层设有玄关、杂物间、坛、车库、餐厅客厅、二层设有3间卧室阳台衣帽间,三层设有主卧室、露台。户型平面功能分区明确,布置合理,使用方便,富有时代气息。

部分资料展示:

 

01 立面图

 

立面图

 

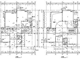
一二层<a href=https://www.yitu.cn/su/7392.html target=_blank class=infotextkey>平面</a>图

 

一二层平面

 

8-1立面图

 

8-1立面图

 

A-G立面图

 

A-G立面图

 

G-A立面图

 

G-A立面图

 

大样图

 

大样图

 

剖面图

 

剖面图

 

屋顶<a href=https://www.yitu.cn/su/7392.html target=_blank class=infotextkey>平面</a>图

 

屋顶平面

欧陆风格3层独栋别墅建筑施工图

ID:15770
软     件:sketchup 大     小:3.70MB 上 传 时 间:20191023 消 耗 积 分:30
  • 收藏 ()
  • 评论 ()
  • ⚠图纸报错

qianqian 普通会员

关注
  • 户外垃圾桶
  • 户外垃圾桶
  • 户外垃圾桶
SU模型、3D模型、贴图、材质、CAD施工图素材:

su模型,su素材库,3d模型,3d模型库,3d模型下载,3d模型素材,3dmax模型免费下载,cad施工图纸,3d材质贴图,沙发SU模型,椅凳SU模型,柜类SU模型,厨卫SU模型,3D沙发模型,3D陈设饰品,3D柜类模型,3D家装空间,家装CAD图纸,CAD图库,CAD节点详图,橱柜衣柜CAD图纸,CAD施工图,居住建筑效果图,工业建筑效果图,公共建筑效果图

友情链接 热门模型 免费模型