yituLogo
当前的位置:首页 > 文本 > 硬装方案文本 > 公共空间 > 儿童空间昆明爱你贝贝托育园PPT设计方案

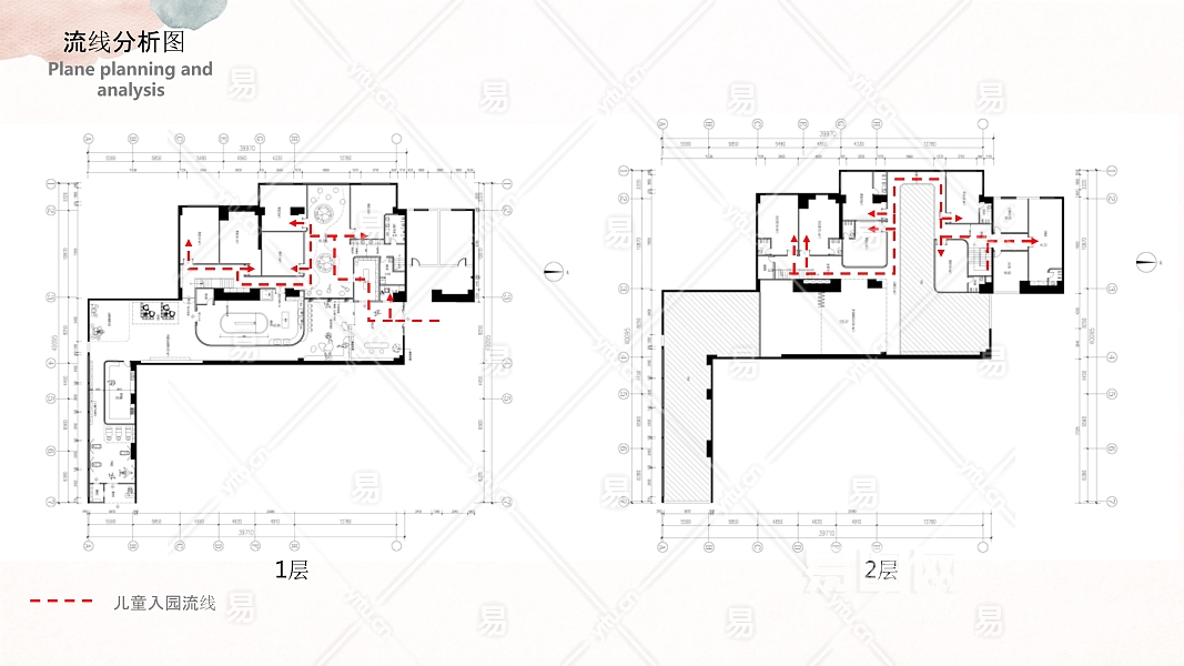
儿童空间昆明爱你贝贝托育园PPT设计方案

收藏 ()
ID:5998
文  件  格  式PPTX(44)页 大        小32.17MB 设计师 / 机构未知 上  传  时  间20241128
24 图币
VIP专享价 0图币
友情链接 热门模型 免费模型