yituLogo
当前的位置:首页 > 文本 > 硬装方案文本 > 公共空间 > 南京大报恩寺遗址博物馆设计方案184页

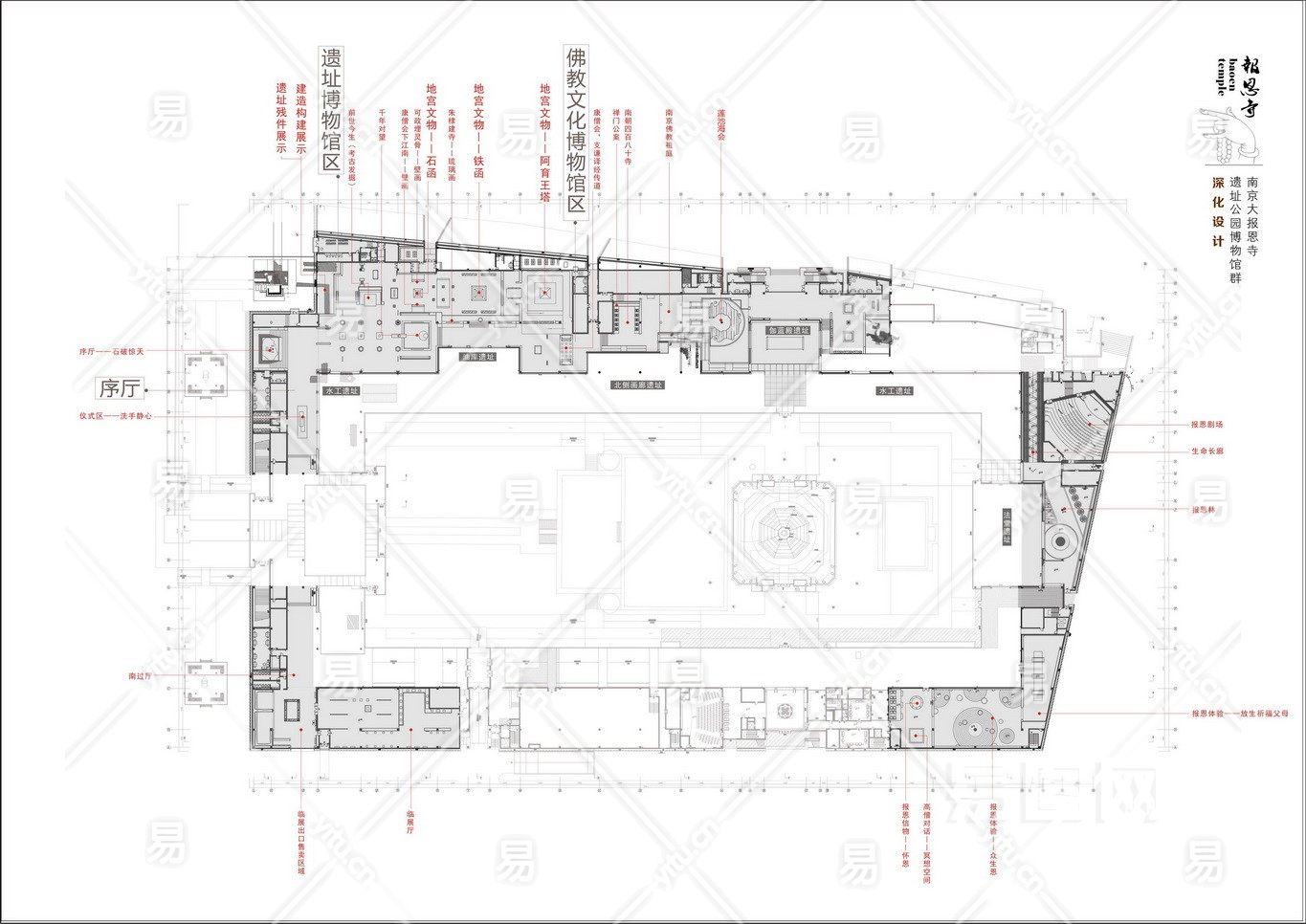
南京大报恩寺遗址博物馆设计方案184页

收藏 ()
ID:5942
文  件  格  式PDF(183)页 大        小37.34MB 设计师 / 机构未知 上  传  时  间20241128
24 图币
VIP专享价 0图币
友情链接 热门模型 免费模型