yituLogo
当前的位置:首页 > 文本 > 景观文本 > 庭院景观 > 滨湖新区庭院景观规划设计施工图

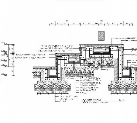
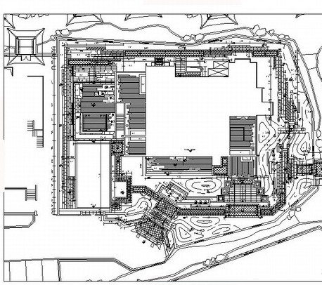
滨湖新区庭院景观规划设计施工图

收藏 ()
ID:1392
文  件  格  式dwg 大        小10.40MB 设计师 / 机构yitu 上  传  时  间20191018
30 图币
VIP专享价 0图币
友情链接 热门模型 免费模型