yituLogo
当前的位置:首页 > 文本 > 景观文本 > 庭院景观 > 高档别墅景观施工图

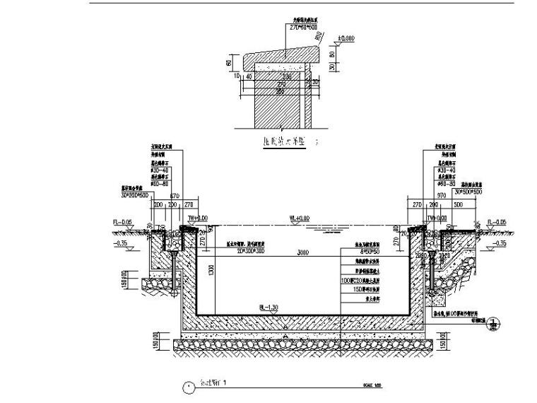
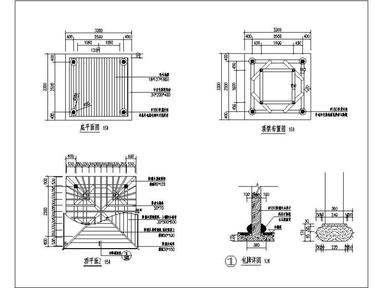
高档别墅景观施工图

收藏 ()
ID:1254
文  件  格  式jpg 大        小27.70MB 设计师 / 机构yitu 上  传  时  间20191016
30 图币
VIP专享价 0图币
友情链接 热门模型 免费模型