yituLogo
当前的位置:首页 > 室内CAD图纸 > cad > 家装图纸 > 别墅大宅 > 新中式别墅-萧山党山别墅全套CAD施工图,别墅施工图下载

图纸介绍

 新中式别墅-萧别墅全套CAD施工图,别墅施工图下载内容简介:图纸包含别墅总平面图、别墅每个空间设计平面图,采用古典设计风格对别墅进行设计空间设计合理,通风采光良好,具有极高的参考价值。

 
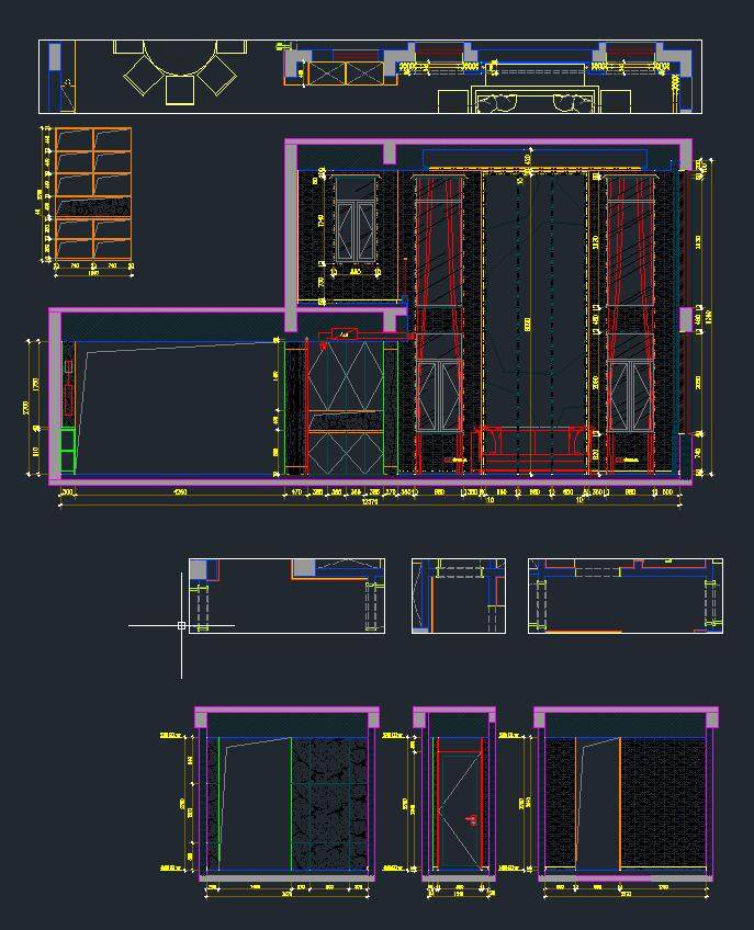
  部分图纸展示:
 
5.jpg
 
 
立面图
 
 
6.jpg
 
 
 
7.jpg
 
 
三层平面

新中式别墅-萧山党山别墅全套CAD施工图,别墅施工图下载

ID:17682
软     件:sketchup 大     小:43.40MB 上 传 时 间:20191108 消 耗 积 分:30
  • 收藏 ()
  • 评论 ()
  • ⚠图纸报错

chengjuan 普通会员

关注
  • 现代美式风格别墅草图大师模型,别墅SU模型下载
  • 现代极简风格别墅草图大师模型,别墅SU模型下载
  • 现代简约风格别墅草图大师模型,别墅SU模型下载
SU模型、3D模型、贴图、材质、CAD施工图素材:

su模型,su素材库,3d模型,3d模型库,3d模型下载,3d模型素材,3dmax模型免费下载,cad施工图纸,3d材质贴图,沙发SU模型,椅凳SU模型,柜类SU模型,厨卫SU模型,3D沙发模型,3D陈设饰品,3D柜类模型,3D家装空间,家装CAD图纸,CAD图库,CAD节点详图,橱柜衣柜CAD图纸,CAD施工图,居住建筑效果图,工业建筑效果图,公共建筑效果图

友情链接 热门模型 免费模型