yituLogo
当前的位置:首页 > 室内CAD图纸 > cad > 家装图纸 > 别墅大宅 > 独栋三层别墅建筑图纸

图纸介绍

别墅类型:独栋别墅                                           高度类别:多层建筑

结构形式:钢筋混凝土结构                               图纸深度:施工图

设计风格:欧陆风格

内容简介:

独栋三层别墅建筑图纸目录:户型是三层独栋别墅,总高度为10.4米,一层建筑的面积有120.4平米,设有活动室、设备间、洗衣间、工房、卫生间等,二层建筑面积有197.5平米,设有展台、门廊、车库、卧室,三层建筑面积有108.5平米,设有卫生间衣帽间以及储藏间等。房间尺度设计适宜,空间利用率较高。

部分图纸展示:

 

01 立面图

 

 立面图

 

一层<a href=https://www.yitu.cn/su/7392.html target=_blank class=infotextkey>平面</a>图

 

一层平面

 

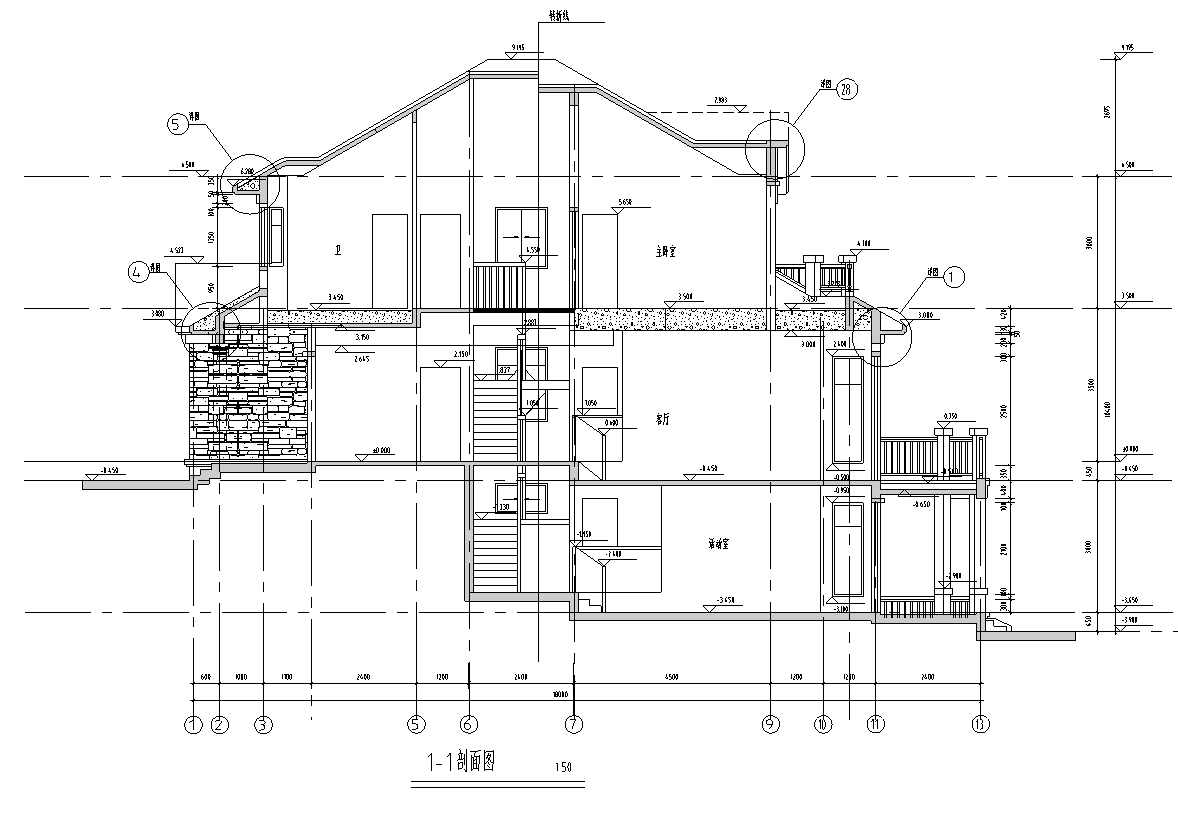
1-1剖面图

 

剖面图

 

2-2剖面图

 

剖面图

 

二层<a href=https://www.yitu.cn/su/7392.html target=_blank class=infotextkey>平面</a>图

 

二层平面

 

立面图

 

立面图

 

三层<a href=https://www.yitu.cn/su/7392.html target=_blank class=infotextkey>平面</a>图

 

三层平面

 

屋顶<a href=https://www.yitu.cn/su/7392.html target=_blank class=infotextkey>平面</a>图

 

屋顶平面

独栋三层别墅建筑图纸

ID:15715
软     件:sketchup 大     小:2.50MB 上 传 时 间:20191023 消 耗 积 分:30
  • 收藏 ()
  • 评论 ()
  • ⚠图纸报错

qianqian 普通会员

关注
  • 户外垃圾桶
  • 户外垃圾桶
  • 户外垃圾桶
SU模型、3D模型、贴图、材质、CAD施工图素材:

su模型,su素材库,3d模型,3d模型库,3d模型下载,3d模型素材,3dmax模型免费下载,cad施工图纸,3d材质贴图,沙发SU模型,椅凳SU模型,柜类SU模型,厨卫SU模型,3D沙发模型,3D陈设饰品,3D柜类模型,3D家装空间,家装CAD图纸,CAD图库,CAD节点详图,橱柜衣柜CAD图纸,CAD施工图,居住建筑效果图,工业建筑效果图,公共建筑效果图

友情链接 热门模型 免费模型