yituLogo
当前的位置:首页 > 室内CAD图纸 > cad > 家装图纸 > 别墅大宅 > 3层独栋别墅建筑图纸设计

图纸介绍

别墅类型:独栋别墅                                                                  高度类型:多层建筑

图纸深度:施工图                                                                      结构形式:钢筋混泥土结构

设计风格:欧陆风格

内容简介:

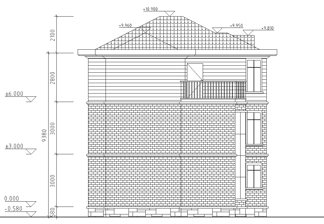
3层独栋别墅建筑图纸设计:建筑高度为9.38米,一层设有门厅、客厅餐厅厨房、洗衣房、卫生间、储藏室、二层建筑面积设有2间卧室、棋牌室、卫生间、三层设有主卧室儿童卧室书房卫生间,该户型设计平整,空间利用率较高。

部分图纸展示:

 

01 正立面图

 

正立面图

 

一层<a href=https://www.yitu.cn/su/7392.html target=_blank class=infotextkey>平面</a>图

 

一层平面

 

左立面图

 

左立面图

 

北立面图

 

北立面图

 

二层<a href=https://www.yitu.cn/su/7392.html target=_blank class=infotextkey>平面</a>图

 

二层平面

 

剖面图

 

剖面图

 

三层<a href=https://www.yitu.cn/su/7392.html target=_blank class=infotextkey>平面</a>图

 

三层平面

 

屋顶<a href=https://www.yitu.cn/su/7392.html target=_blank class=infotextkey>平面</a>图

 

屋顶平面

 

右立面图

 

右立面图

3层独栋别墅建筑图纸设计

ID:15676
软     件:sketchup 大     小:2.70MB 上 传 时 间:20191022 消 耗 积 分:30
  • 收藏 ()
  • 评论 ()
  • ⚠图纸报错

qianqian 普通会员

关注
  • 户外垃圾桶
  • 户外垃圾桶
  • 户外垃圾桶
SU模型、3D模型、贴图、材质、CAD施工图素材:

su模型,su素材库,3d模型,3d模型库,3d模型下载,3d模型素材,3dmax模型免费下载,cad施工图纸,3d材质贴图,沙发SU模型,椅凳SU模型,柜类SU模型,厨卫SU模型,3D沙发模型,3D陈设饰品,3D柜类模型,3D家装空间,家装CAD图纸,CAD图库,CAD节点详图,橱柜衣柜CAD图纸,CAD施工图,居住建筑效果图,工业建筑效果图,公共建筑效果图

友情链接 热门模型 免费模型