yituLogo
当前的位置:首页 > 室内CAD图纸 > cad > 家装图纸 > 别墅大宅 > 现代风格三层独栋别墅建筑施工图

图纸介绍

别墅类型:独栋别墅                            高度类别:多层建筑

外立面材料:材                                设计风格:现代风格

内容简介:

现代风格三层独栋别墅建筑施工目录:户型为单家独院式,占面积为136.28平方米,建筑面积为264.59平方米,一层内设有客厅、老卧室卫生间厨房餐厅、车库、二次则有起居室卫生间、三层设有1储藏室、卧室卫生间户型采用平屋顶与坡屋顶相结合的方式,打造一个外观、造型简洁大方、色彩明快、房间尺度设计的风格。

部分图纸展示:

 

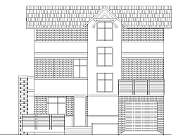
01 南立面图

 

南立面图

 

一二层<a href=https://www.yitu.cn/su/7392.html target=_blank class=infotextkey>平面</a>图

 

一二层平面

 

北立面图

 

北立面图

 

东立面图

 

东立面图

 

三层<a href=https://www.yitu.cn/su/7392.html target=_blank class=infotextkey>平面</a>图

 

三层平面

 

屋顶<a href=https://www.yitu.cn/su/7392.html target=_blank class=infotextkey>平面</a>图

 

屋顶平面

 

西立面图

 

西立面图

现代风格三层独栋别墅建筑施工图

ID:15660
软     件:sketchup 大     小:1.50MB 上 传 时 间:20191022 消 耗 积 分:30
  • 收藏 ()
  • 评论 ()
  • ⚠图纸报错

qianqian 普通会员

关注
  • 户外垃圾桶
  • 户外垃圾桶
  • 户外垃圾桶
SU模型、3D模型、贴图、材质、CAD施工图素材:

su模型,su素材库,3d模型,3d模型库,3d模型下载,3d模型素材,3dmax模型免费下载,cad施工图纸,3d材质贴图,沙发SU模型,椅凳SU模型,柜类SU模型,厨卫SU模型,3D沙发模型,3D陈设饰品,3D柜类模型,3D家装空间,家装CAD图纸,CAD图库,CAD节点详图,橱柜衣柜CAD图纸,CAD施工图,居住建筑效果图,工业建筑效果图,公共建筑效果图

友情链接 热门模型 免费模型