yituLogo
当前的位置:首页 > 室内CAD图纸 > cad > 家装图纸 > 别墅大宅 > 纳帕溪谷别墅实景手绘CAD建筑施工图下载

图纸介绍

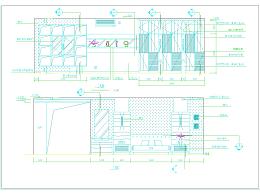
纳帕溪谷别墅实景手绘CAD建筑施工图,该建筑施工图的户型为别墅户型,一共两层。设计师对施工过程中的前期结构尺寸的改造使得室内的陈设风格更加的符合客户的心理需求,对每一层的细节把握也非常的到位,是一个不可多得的好设计施工方案。给一种眼前一亮的感觉。

纳帕溪谷别墅实景手绘CAD建筑施工图下载

ID:14717
软     件:sketchup 大     小:7.10MB 上 传 时 间:20190726 消 耗 积 分:30
  • 收藏 ()
  • 评论 ()
  • ⚠图纸报错

zhangjin 普通会员

关注
  • 苏州古典园林怡园su模型,怡园cad建筑模型下载
  • 苏州狮子园建筑模型,古典私家园狮子林模型下载
  • 苏州古典留园建筑模型,苏州古典园林su模型下载
SU模型、3D模型、贴图、材质、CAD施工图素材:

su模型,su素材库,3d模型,3d模型库,3d模型下载,3d模型素材,3dmax模型免费下载,cad施工图纸,3d材质贴图,沙发SU模型,椅凳SU模型,柜类SU模型,厨卫SU模型,3D沙发模型,3D陈设饰品,3D柜类模型,3D家装空间,家装CAD图纸,CAD图库,CAD节点详图,橱柜衣柜CAD图纸,CAD施工图,居住建筑效果图,工业建筑效果图,公共建筑效果图

友情链接 热门模型 免费模型