yituLogo
当前的位置:首页 > 室内CAD图纸 > cad > 家装图纸 > 别墅大宅 > 深圳帝豪湾公墅A栋13F全套施工图及高清效果图下载

图纸介绍

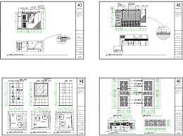
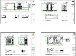
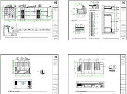
<SPAn style="font-size: 14px;"> 深圳帝豪湾公墅A栋13F全套施工图及高清效果图下载,中国风格占主导位,民族风格很浓,特别是在色调上,以朱红、绛红、咖啡等为主要色,所以中式装饰风格尤为庄重。庄重色调占主导位,设计自然显得幽静、雅观,所以中式装修还有一个最大的特色和卖点,就是特别耐看,百看不厌。易图网为您提供下载服务,好看实用。SPAn>

深圳帝豪湾公墅A栋13F全套施工图及高清效果图下载

ID:14637
软     件:sketchup 大     小:26.60MB 上 传 时 间:20190726 消 耗 积 分:30
  • 收藏 ()
  • 评论 ()
  • ⚠图纸报错

husen 普通会员

关注
  • 中式售楼处sketchup模型,销售中心skp模型下载
  • 中式售楼处su模型,销售中心草图大师模型下载
  • 中式历史文化展厅su模型,展厅草图大师模型下载
SU模型、3D模型、贴图、材质、CAD施工图素材:

su模型,su素材库,3d模型,3d模型库,3d模型下载,3d模型素材,3dmax模型免费下载,cad施工图纸,3d材质贴图,沙发SU模型,椅凳SU模型,柜类SU模型,厨卫SU模型,3D沙发模型,3D陈设饰品,3D柜类模型,3D家装空间,家装CAD图纸,CAD图库,CAD节点详图,橱柜衣柜CAD图纸,CAD施工图,居住建筑效果图,工业建筑效果图,公共建筑效果图

友情链接 热门模型 免费模型