yituLogo
当前的位置:首页 > 室内CAD图纸 > cad > 家装图纸 > 别墅大宅 > 鄂尔多斯两层欧式古典豪宅CAD施工图下载

图纸介绍

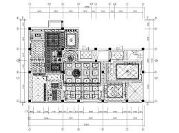
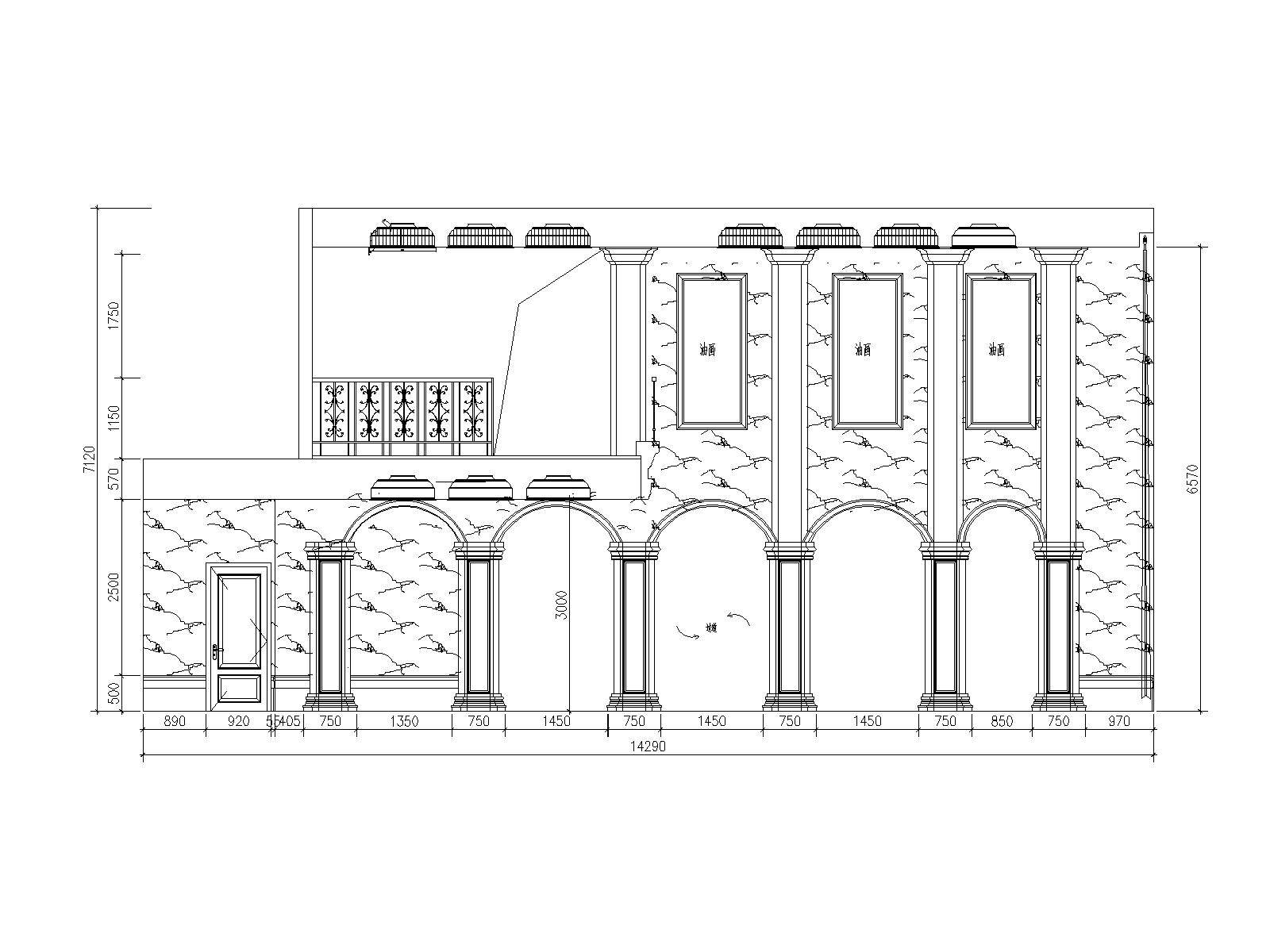
<SPAn style="font-size: 14px;"> 鄂尔多斯两层欧式古典豪宅CAD施工图下载,极具欧式风格在配饰上,金黄色和棕色的配饰衬托出古典家具的高贵与优雅,在色彩上,经常以白色系或黄色系为基础,搭配墨绿色、深棕色、金色等,表现出古典欧式风格的华贵气质。易图网为您提供下载服务,好看实用。SPAn>

鄂尔多斯两层欧式古典豪宅CAD施工图下载

ID:14440
软     件:sketchup 大     小:78.10MB 上 传 时 间:20190725 消 耗 积 分:30
  • 收藏 ()
  • 评论 ()
  • ⚠图纸报错

husen 普通会员

关注
  • 中式售楼处sketchup模型,销售中心skp模型下载
  • 中式售楼处su模型,销售中心草图大师模型下载
  • 中式历史文化展厅su模型,展厅草图大师模型下载
SU模型、3D模型、贴图、材质、CAD施工图素材:

su模型,su素材库,3d模型,3d模型库,3d模型下载,3d模型素材,3dmax模型免费下载,cad施工图纸,3d材质贴图,沙发SU模型,椅凳SU模型,柜类SU模型,厨卫SU模型,3D沙发模型,3D陈设饰品,3D柜类模型,3D家装空间,家装CAD图纸,CAD图库,CAD节点详图,橱柜衣柜CAD图纸,CAD施工图,居住建筑效果图,工业建筑效果图,公共建筑效果图

友情链接 热门模型 免费模型