yituLogo
当前的位置:首页 > 室内CAD图纸 > cad > 家装图纸 > 别墅大宅 > 缘城新缘园别墅户型施工图CAD下载、别墅户型施工图CAD下载

图纸介绍

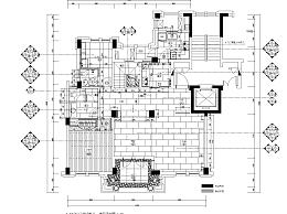
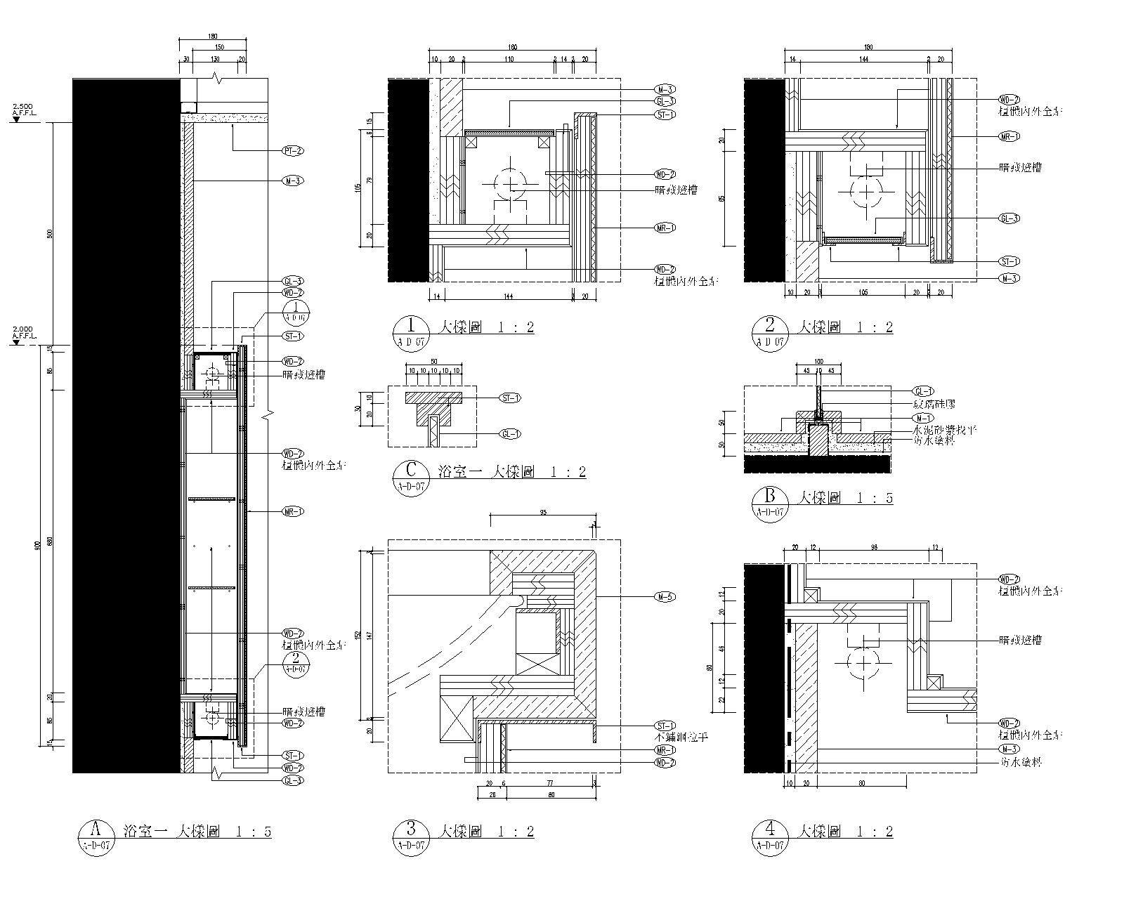
缘城新缘园别墅户型施工图CAD下载,别墅大宅施工图的要求十分的严格,对详图、剖面图、平面图等图纸十分的苛刻。所以能作为别墅施工图,质量自然严格。原创图大师su模型skb模型分享

缘城新缘园别墅户型施工图CAD下载、别墅户型施工图CAD下载

ID:13383
软     件:sketchup 大     小:7.90MB 上 传 时 间:20190718 消 耗 积 分:30
  • 收藏 ()
  • 评论 ()
  • ⚠图纸报错

白桦树 普通会员

关注
  • 欧式别墅su模型下载、欧式别墅草图大师模型下载
  • 欧式别墅su模型下载、欧式别墅草图大师模型下载
  • 欧式别墅su模型下载、欧式别墅草图大师模型下载
SU模型、3D模型、贴图、材质、CAD施工图素材:

su模型,su素材库,3d模型,3d模型库,3d模型下载,3d模型素材,3dmax模型免费下载,cad施工图纸,3d材质贴图,沙发SU模型,椅凳SU模型,柜类SU模型,厨卫SU模型,3D沙发模型,3D陈设饰品,3D柜类模型,3D家装空间,家装CAD图纸,CAD图库,CAD节点详图,橱柜衣柜CAD图纸,CAD施工图,居住建筑效果图,工业建筑效果图,公共建筑效果图

友情链接 热门模型 免费模型