yituLogo
当前的位置:首页 > 室内CAD图纸 > cad > 商业空间 > 会所 > 国际酒店桑拿中心设计装修图,桑拿会所CAD图纸下载

图纸介绍

               空间划分:成套桑拿                                      图纸深度:施工图

               功能类型:桑拿会所                                     设计风格:现代风格

               图片格式:JPG

资料为:国际酒店桑拿中心设计装修图。

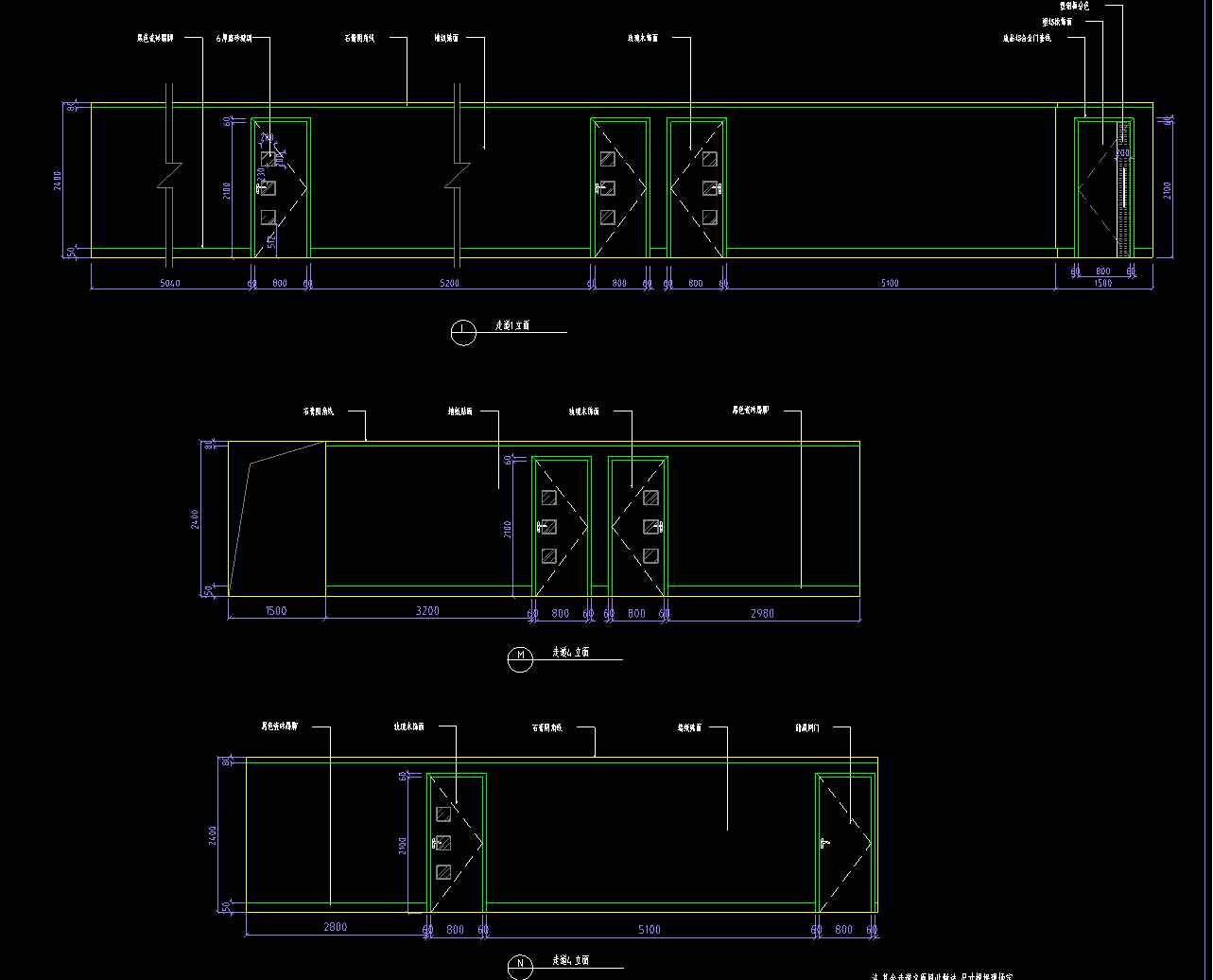
资料内容包括:全套CAD施工图,男子洗浴、VIP、包间平面布置图,顶面布置图,走廊立面图,包间立面图,卫生间立面图,女子洗浴、休息大厅平面布置图,女子洗浴、休息大厅顶面布置图,女子洗浴立面图,女子更衣室立面图等。内容详实,作图规范,图纸中无错漏碰缺,具有较高的参考价值,可供设计师参考。

部分图纸展示:

QQ截图20200617170453.png

 

大厅平面布置图

 

QQ截图20200617170459.png

 

立面图

 

QQ截图20200617170514.png

 

服务台立面图

 

QQ截图20200617170522.png

 

女子洗浴立面图

国际酒店桑拿中心设计装修图,桑拿会所CAD图纸下载

ID:24390
软     件:sketchup 大     小:1.50MB 上 传 时 间:20200617 消 耗 积 分:30
  • 收藏 ()
  • 评论 ()
  • ⚠图纸报错

qianqian 普通会员

关注
  • 户外垃圾桶
  • 户外垃圾桶
  • 户外垃圾桶
SU模型、3D模型、贴图、材质、CAD施工图素材:

su模型,su素材库,3d模型,3d模型库,3d模型下载,3d模型素材,3dmax模型免费下载,cad施工图纸,3d材质贴图,沙发SU模型,椅凳SU模型,柜类SU模型,厨卫SU模型,3D沙发模型,3D陈设饰品,3D柜类模型,3D家装空间,家装CAD图纸,CAD图库,CAD节点详图,橱柜衣柜CAD图纸,CAD施工图,居住建筑效果图,工业建筑效果图,公共建筑效果图

友情链接 热门模型 免费模型