yituLogo
当前的位置:首页 > 室内CAD图纸 > cad > 商业空间 > 会所 > 大型洗浴空间女宾桑拿区装修图,桑拿会所CAD图纸下载

图纸介绍

            空间划分:成套桑拿                                          图纸深度:施工图

            功能类型:桑拿会所                                          设计风格:现代风格

            图片格式:JPG

资料为:大型洗浴空间女宾桑拿区装修图。

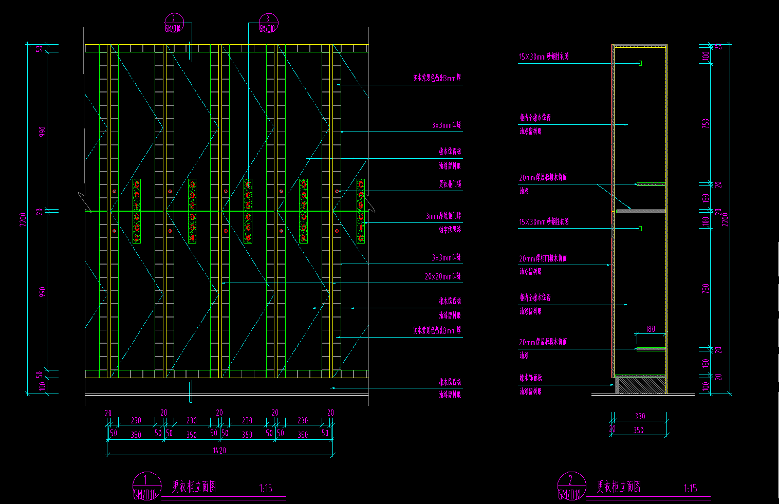
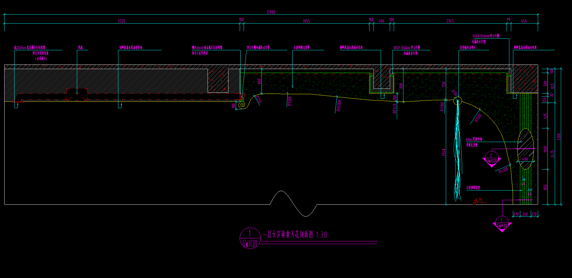
资料内容包括:全套CAD施工图,更衣柜立面图,一层女宾桑拿区天图,女宾天剖面图,一层女宾桑拿区天灯位图,一层女宾桑拿区果吧大样图,一层女宾桑拿区手机大样图,女宾桑拿区大样图,女宾桑拿区节点大样图,女宾桑拿区立面图,女宾桑拿区平面图等。内容详实,作图规范,图纸中无错漏碰缺,具有较高的参考价值,可供设计师参考。

部分图纸展示:

QQ截图20200617170235.png

 

果吧大样图

 

QQ截图20200617170243.png

 

手机柜大样图

 

QQ截图20200617170252.png

 

池剖面图

 

QQ截图20200617170308.png

 

桑拿区立面图

大型洗浴空间女宾桑拿区装修图,桑拿会所CAD图纸下载

ID:24389
软     件:sketchup 大     小:2.20MB 上 传 时 间:20200617 消 耗 积 分:30
  • 收藏 ()
  • 评论 ()
  • ⚠图纸报错

qianqian 普通会员

关注
  • 户外垃圾桶
  • 户外垃圾桶
  • 户外垃圾桶
SU模型、3D模型、贴图、材质、CAD施工图素材:

su模型,su素材库,3d模型,3d模型库,3d模型下载,3d模型素材,3dmax模型免费下载,cad施工图纸,3d材质贴图,沙发SU模型,椅凳SU模型,柜类SU模型,厨卫SU模型,3D沙发模型,3D陈设饰品,3D柜类模型,3D家装空间,家装CAD图纸,CAD图库,CAD节点详图,橱柜衣柜CAD图纸,CAD施工图,居住建筑效果图,工业建筑效果图,公共建筑效果图

友情链接 热门模型 免费模型