SUQQ群
QQ扫一扫
图纸深度:施工图 项目位置:广东
设计时间:2016 包含图片:效果图
楼层数:2层 建筑面积:190㎡
内容简介:效果图,封面,设计说明,目录表,平面图、墙体定位尺寸图、平面布置图、天花造型尺寸图、地面铺装图、综合天花布置图、大样图(前厅、走廊区、vip室、公共卫生间);立面图:(员工休息室、vip室、公共卫生间)商铺装饰要突出舒适感和人性化的设计理念。随着健康意识的普及,以及人们对于美好形象的追求,体育健身是现在广大消费者的需求,朋友相聚去健身或者运动是目前比较潮流的方式。
另附:电气图、给排水图、材料表。
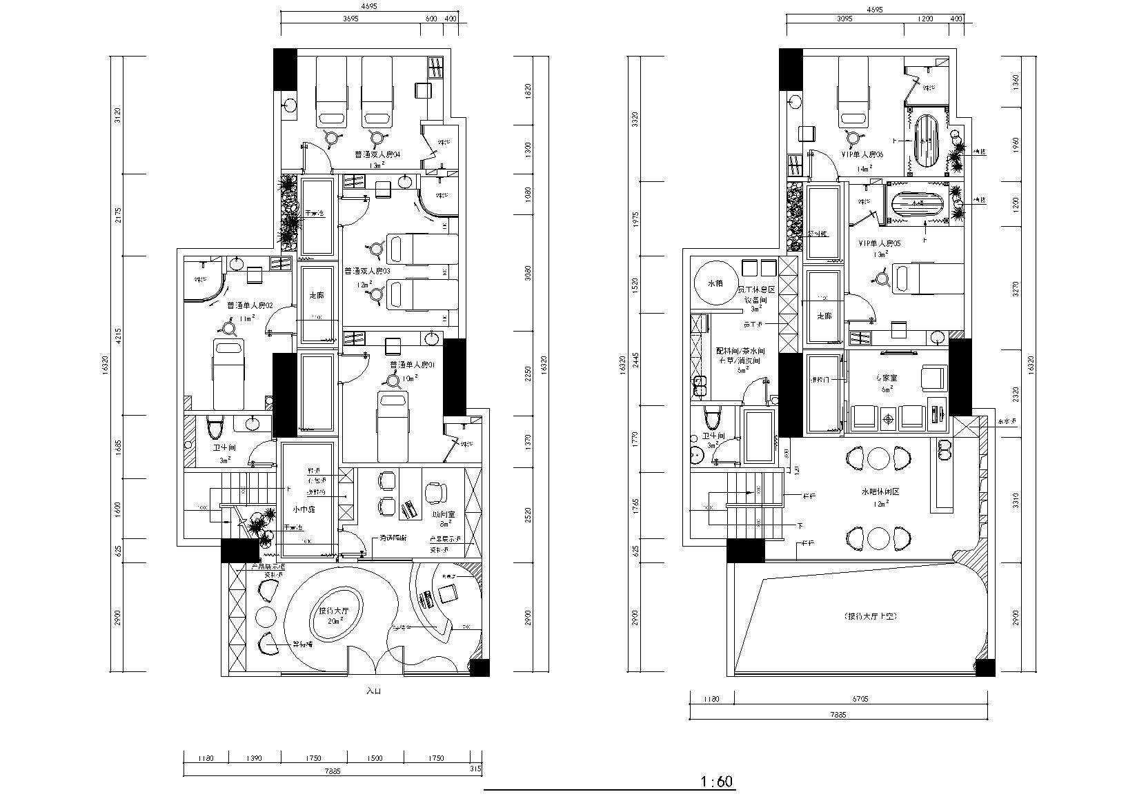
一二层平面布置图

一二层天花造型尺寸图

一二层地面铺装图

一二层隔墙尺寸图

一二层立面索引图

一层接待大厅AB立面

接待大厅平立面图

一层走廊立面

二层休息室立面

一层卫生间立面

门店效果图

接待大厅效果图

一层走廊效果图

二层休息区效果图

VIP单人房效果图

双人房效果图

美容养生馆施工图缩略图

美容养生馆总缩略图
上一篇:游客接待中心施工图方案
下一篇:游客接待中心施工图方案
su模型,su素材库,3d模型,3d模型库,3d模型下载,3d模型素材,3dmax模型免费下载,cad施工图纸,3d材质贴图,沙发SU模型,椅凳SU模型,柜类SU模型,厨卫SU模型,3D沙发模型,3D陈设饰品,3D柜类模型,3D家装空间,家装CAD图纸,CAD图库,CAD节点详图,橱柜衣柜CAD图纸,CAD施工图,居住建筑效果图,工业建筑效果图,公共建筑效果图
Copyright 易图网 2006-2025 All Rights Reserved ICP证:蜀ICP备2023015644号-6
四川鑫众焱信息技术服务有限公司| 地址:绵阳市涪城区瀚威城市中心1栋1单元42层2号