yituLogo
当前的位置:首页 > 文本 > 硬装方案文本 > 文化艺术空间 > 沭阳县图书馆PPT设计方案

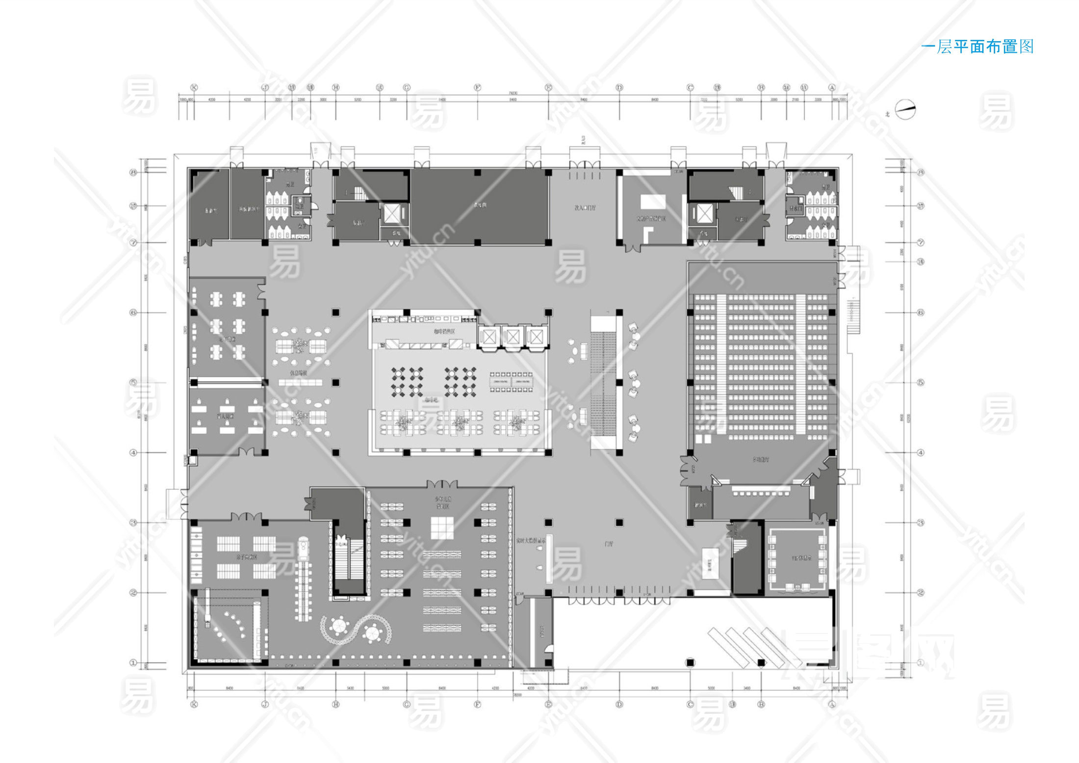
沭阳县图书馆PPT设计方案

收藏 ()
ID:5854
文  件  格  式PPTX(65)页 大        小37.54MB 设计师 / 机构未知 上  传  时  间20241128
24 图币
VIP专享价 0图币
友情链接 热门模型 免费模型