yituLogo
当前的位置:首页 > 文本 > 硬装方案文本 > 办公空间 > 新加坡企查查总部办公楼PPT设计方案

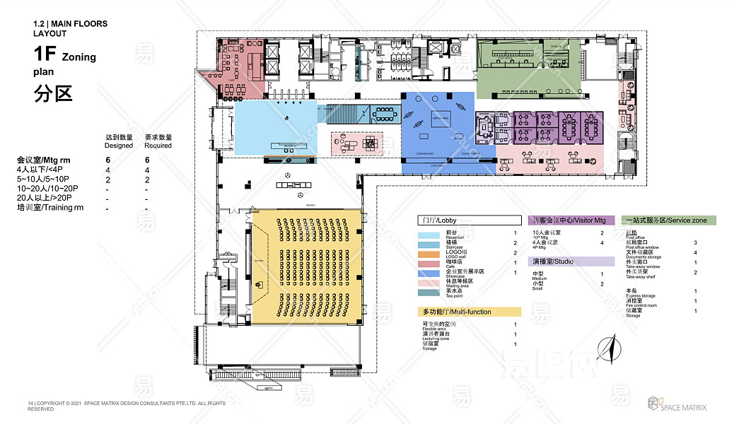
新加坡企查查总部办公楼PPT设计方案

收藏 ()
ID:5228
文  件  格  式PPTX(125)页 大        小101.26MB 设计师 / 机构未知 上  传  时  间20241127
24 图币
VIP专享价 0图币
友情链接 热门模型 免费模型