yituLogo
当前的位置:首页 > 文本 > 硬装方案文本 > 办公空间 > CCD青岛国际大健康产业化基地核心区办公PPT设计方案

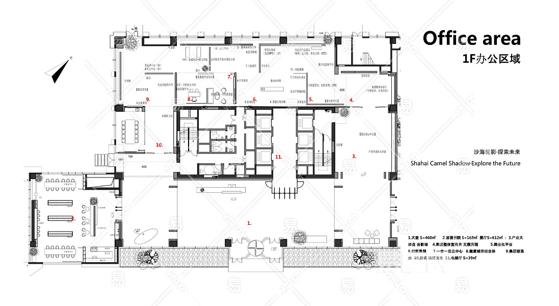
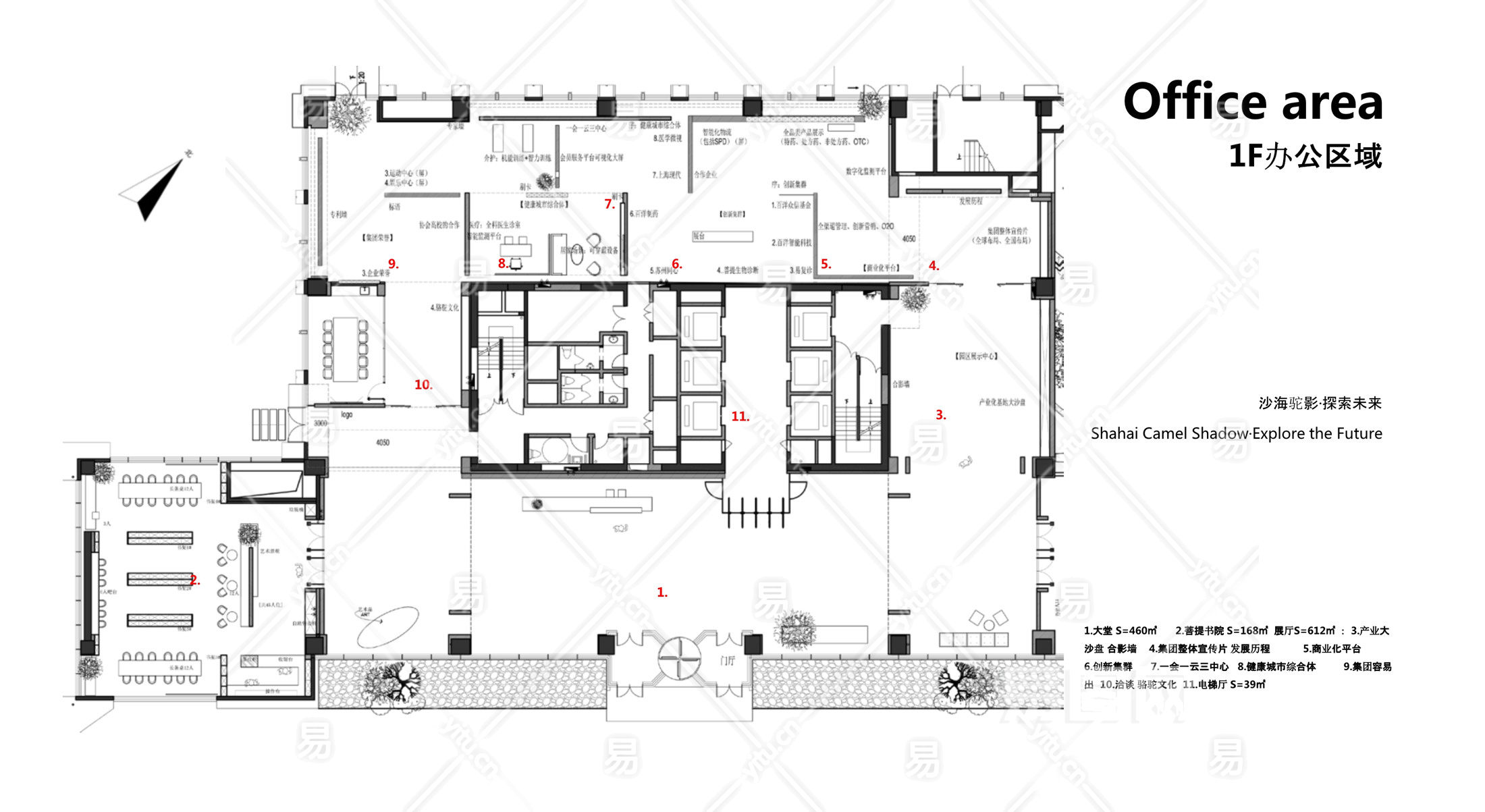
CCD青岛国际大健康产业化基地核心区办公PPT设计方案

收藏 ()
ID:5203
文  件  格  式PPTX(70)页 大        小27.53MB 设计师 / 机构CCD 上  传  时  间20241127
24 图币
VIP专享价 0图币
友情链接 热门模型 免费模型