yituLogo
当前的位置:首页 > 文本 > 硬装方案文本 > 办公空间 > 传音智汇广场共享办公PPT深化方案

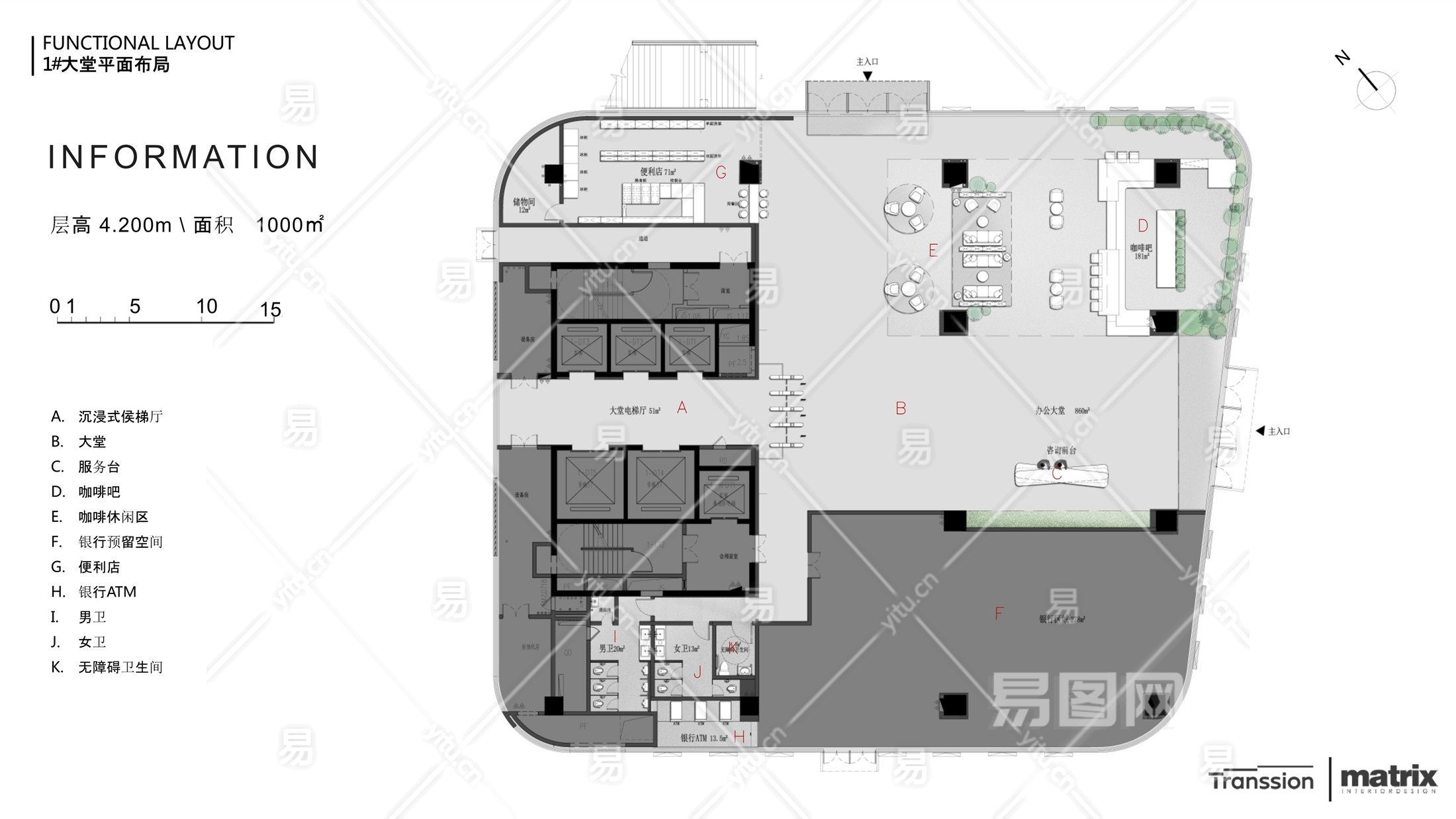
传音智汇广场共享办公PPT深化方案

收藏 ()
ID:5205
文  件  格  式PPTX(47)页 大        小113.53MB 设计师 / 机构未知 上  传  时  间20241127
24 图币
VIP专享价 0图币
友情链接 热门模型 免费模型