yituLogo
当前的位置:首页 > 室内CAD图纸 > cad > 公共区间 > 文体医疗 > 最新医疗嘉兴高端妇产医院悦程妇产医院

图纸介绍

空间划分:成套医院                                           功能类型:医院住院

图纸深度:施工图                                               项目位置:浙江

设计风格:现代风格                                           图纸格式:JPG,CAD2000

设计时间:2015                                                  包含图片:效果图

层数:4层

内容简介:

嘉兴高端妇产医院悦程妇产医院内装图纸。采用现代的设计风格,对效果图、内装施工图出图版、暖施工图出图版、电气施工图出图版、实景图、360度VR实景等进行初步设计,发展文体医疗,促进社会发展。

  

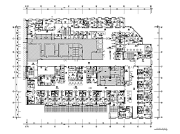
1F<a href=https://www.yitu.cn/su/7392.html target=_blank class=infotextkey>平面</a>图

 

  1F平面

  

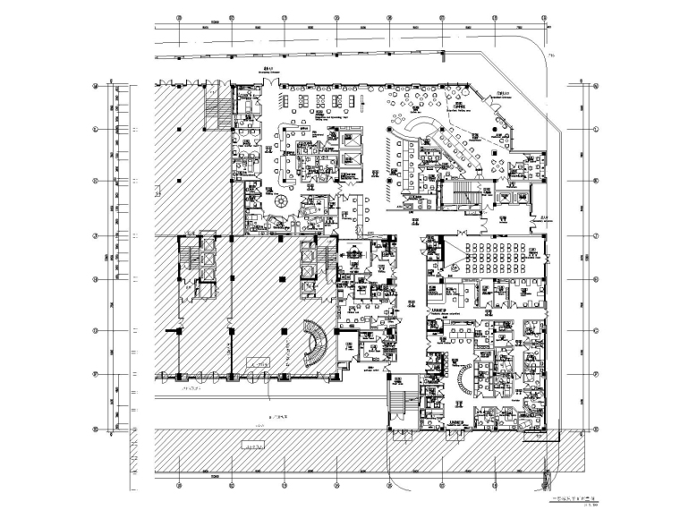
2F<a href=https://www.yitu.cn/su/7392.html target=_blank class=infotextkey>平面</a>图

 

  2F平面

  

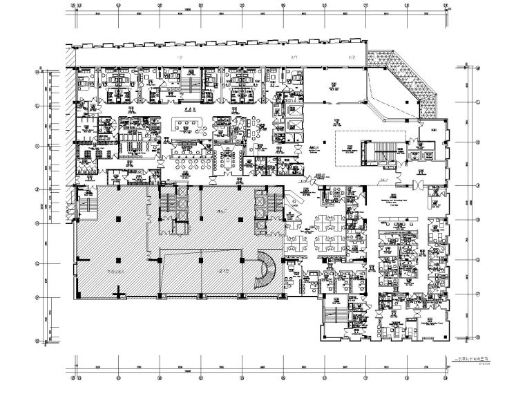
3F<a href=https://www.yitu.cn/su/7392.html target=_blank class=infotextkey>平面</a>图

 

  3F平面

  

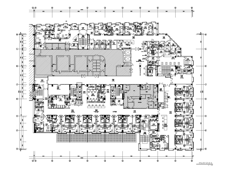
4F<a href=https://www.yitu.cn/su/7392.html target=_blank class=infotextkey>平面</a>图

 

  4F平面

  

51F索引图

 

  1F索引图

  

61F墙体类型图

 

  1F墙体类型图

  

71F<a href=https://www.yitu.cn/su/7872.html target=_blank class=infotextkey>地</a>面材料图

 

  1F面材料图

  

81F综合天<a href=https://www.yitu.cn/sketchup/huayi/index.html target=_blank class=infotextkey>花</a>

 

  1F综合天

  

实景 (1)

 

  实景 (1)

最新医疗嘉兴高端妇产医院悦程妇产医院

ID:17166
软     件:sketchup 大     小:429.10MB 上 传 时 间:20191106 消 耗 积 分:30
  • 收藏 ()
  • 评论 ()
  • ⚠图纸报错

strawberry 普通会员

UI社UI社UI社UI社UI社UI社UI社UI社UI社UI社UI社UI社UI社
关注
SU模型、3D模型、贴图、材质、CAD施工图素材:

su模型,su素材库,3d模型,3d模型库,3d模型下载,3d模型素材,3dmax模型免费下载,cad施工图纸,3d材质贴图,沙发SU模型,椅凳SU模型,柜类SU模型,厨卫SU模型,3D沙发模型,3D陈设饰品,3D柜类模型,3D家装空间,家装CAD图纸,CAD图库,CAD节点详图,橱柜衣柜CAD图纸,CAD施工图,居住建筑效果图,工业建筑效果图,公共建筑效果图

友情链接 热门模型 免费模型