SUQQ群
QQ扫一扫
图纸深度:施工图 项目位置:广东
设计时间:2015年
内容简介:
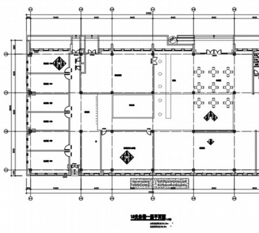
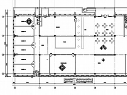
[深圳]大型肃穆冷艳多功能殡仪馆服务中心施工图。采用现代的设计风格,对(原始平面图、平面布局图、地面铺装图、天花布置图、天花平面图);立面图(业务大厅、会议室、洽谈室、卫生间、殡仪市场、接待室、多功能厅、宿舍等进行初步设计。
![[深圳]大型肃穆冷艳多功能殡仪馆服务中心施工图](https://pic.yitu.cn/d/file/240c07e0908693a368d68d693bf2dfad.png?x-oss-process=style/w1200)
效果图
![[深圳]大型肃穆冷艳多功能殡仪馆服务中心施工图立面图](https://pic.yitu.cn/d/file/225b5740b45cd990788ba0cf517721e0.png?x-oss-process=style/w1200)
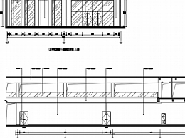
[深圳]大型肃穆冷艳多功能殡仪馆服务中心施工图立面图
![[深圳]大型肃穆冷艳多功能殡仪馆服务中心施工图立面图](https://pic.yitu.cn/d/file/7fa60248943e343ea9b165152ba516d9.png?x-oss-process=style/w1200)
[深圳]大型肃穆冷艳多功能殡仪馆服务中心施工图立面图
![[深圳]大型肃穆冷艳多功能殡仪馆服务中心施工图立面图](https://pic.yitu.cn/d/file/91537fbcc5a9f6b5431fb35b665c8194.png?x-oss-process=style/w1200)
[深圳]大型肃穆冷艳多功能殡仪馆服务中心施工图立面图
![[深圳]大型肃穆冷艳多功能殡仪馆服务中心施工图立面图](https://pic.yitu.cn/d/file/2f045c2deb9c6df26b4e203ccac46fd4.png?x-oss-process=style/w1200)
[深圳]大型肃穆冷艳多功能殡仪馆服务中心施工图立面图
![[深圳]大型肃穆冷艳多功能殡仪馆服务中心施工图立面图](https://pic.yitu.cn/d/file/46357bbcf1dd3f7fdad5e3e37ecafa1a.png?x-oss-process=style/w1200)
[深圳]大型肃穆冷艳多功能殡仪馆服务中心施工图立面图
![[深圳]大型肃穆冷艳多功能殡仪馆服务中心施工图立面图](https://pic.yitu.cn/d/file/d36950aa9952b219edd99604c403ffe4.png?x-oss-process=style/w1200)
[深圳]大型肃穆冷艳多功能殡仪馆服务中心施工图立面图
![[深圳]大型肃穆冷艳多功能殡仪馆服务中心施工图立面图](https://pic.yitu.cn/d/file/76ad559f008e4ccf63c12eff77fb2587.png?x-oss-process=style/w1200)
[深圳]大型肃穆冷艳多功能殡仪馆服务中心施工图立面图
上一篇:某知名美容整形外科诊所装修图
下一篇:某知名美容整形外科诊所装修图
su模型,su素材库,3d模型,3d模型库,3d模型下载,3d模型素材,3dmax模型免费下载,cad施工图纸,3d材质贴图,沙发SU模型,椅凳SU模型,柜类SU模型,厨卫SU模型,3D沙发模型,3D陈设饰品,3D柜类模型,3D家装空间,家装CAD图纸,CAD图库,CAD节点详图,橱柜衣柜CAD图纸,CAD施工图,居住建筑效果图,工业建筑效果图,公共建筑效果图
Copyright 易图网 2006-2025 All Rights Reserved ICP证:蜀ICP备2023015644号-6
四川鑫众焱信息技术服务有限公司| 地址:绵阳市涪城区瀚威城市中心1栋1单元42层2号