yituLogo
当前的位置:首页 > 室内CAD图纸 > cad > 公共区间 > 文体医疗 > 太平养老社区项目全套施工图

图纸介绍

空间划分:其他空间                                             功能类型:疗养院,其他

图纸深度:竣工图                                                 项目位置:上海

设计风格:现代风格,新中式风格                           图纸格式:JPG,CAD2000

设计时间:2017                                                     包含图片:效果图

层数:10层

内容简介:

[上海]HKG-太平养老社区项目全套施工图。采用现代和新中式的设计风格,对效果图,CAD施工图(图纸目录,施工图设计说明、平面图,立面图,节点大样,机电图纸建筑图纸等全部工程施工图纸)材料表,设计方案,物料书等进行初步设计

 

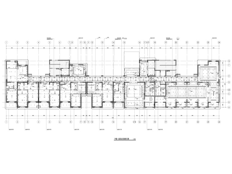
一<a href=https://www.yitu.cn/su/8159.html target=_blank class=infotextkey>楼</a>一层<a href=https://www.yitu.cn/su/7392.html target=_blank class=infotextkey>平面</a>索引图

 

一层平面索引图

 

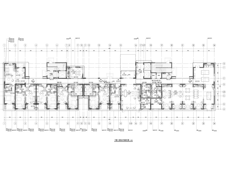
一<a href=https://www.yitu.cn/su/8159.html target=_blank class=infotextkey>楼</a>一层铺<a href=https://www.yitu.cn/su/7872.html target=_blank class=infotextkey>地</a>尺寸及<a href=https://www.yitu.cn/su/7392.html target=_blank class=infotextkey>平面</a>设备末端定位图

 

一层铺尺寸及平面设备末端定位图

 

一<a href=https://www.yitu.cn/su/8159.html target=_blank class=infotextkey>楼</a>一层综合天<a href=https://www.yitu.cn/sketchup/huayi/index.html target=_blank class=infotextkey>花</a>示意图

 

一层综合天示意图

 

2,4,6<a href=https://www.yitu.cn/su/8159.html target=_blank class=infotextkey>楼</a><a href=https://www.yitu.cn/su/7872.html target=_blank class=infotextkey>地</a>铺尺寸及<a href=https://www.yitu.cn/su/7392.html target=_blank class=infotextkey>平面</a>设备末端定位图

 

2,4,6铺尺寸及平面设备末端定位图

 

2,4,6<a href=https://www.yitu.cn/su/8159.html target=_blank class=infotextkey>楼</a>一层卫星<a href=https://www.yitu.cn/su/7392.html target=_blank class=infotextkey>平面</a>布置图

 

2,4,6一层卫星平面布置图

 

2,4,6<a href=https://www.yitu.cn/su/8159.html target=_blank class=infotextkey>楼</a>综合顶面示意图

 

2,4,6综合顶面示意图

 

2,4,6<a href=https://www.yitu.cn/su/8159.html target=_blank class=infotextkey>楼</a>综合<a href=https://www.yitu.cn/su/7392.html target=_blank class=infotextkey>平面</a>索引图

 

2,4,6综合平面索引图

 

2~7<a href=https://www.yitu.cn/su/8159.html target=_blank class=infotextkey>楼</a>一层门厅<a href=https://www.yitu.cn/su/7392.html target=_blank class=infotextkey>平面</a>布置及索引图

 

2~7一层门厅平面布置及索引图

 

一层门厅立面图

 

一层门厅立面图

 

彩平立面 (1)

 

太平养老公寓彩平立面 (1)

太平养老社区项目全套施工图

ID:17023
软     件:sketchup 大     小:530.20MB 上 传 时 间:20191105 消 耗 积 分:30
  • 收藏 ()
  • 评论 ()
  • ⚠图纸报错

strawberry 普通会员

UI社UI社UI社UI社UI社UI社UI社UI社UI社UI社UI社UI社UI社
关注
SU模型、3D模型、贴图、材质、CAD施工图素材:

su模型,su素材库,3d模型,3d模型库,3d模型下载,3d模型素材,3dmax模型免费下载,cad施工图纸,3d材质贴图,沙发SU模型,椅凳SU模型,柜类SU模型,厨卫SU模型,3D沙发模型,3D陈设饰品,3D柜类模型,3D家装空间,家装CAD图纸,CAD图库,CAD节点详图,橱柜衣柜CAD图纸,CAD施工图,居住建筑效果图,工业建筑效果图,公共建筑效果图

友情链接 热门模型 免费模型