yituLogo
当前的位置:首页 > 室内CAD图纸 > cad > 公共区间 > 文体医疗 > 2500平米三层独栋幼儿园

图纸介绍

空间划分:成套图纸                                        空间类型:幼儿园

图纸深度:施工图                                            设计风格:现代风格

图纸格式:CAD2000                                       图纸张数:53张

包含图片:效果图                                            建筑面积:2500㎡

层数:3层

内容简介:

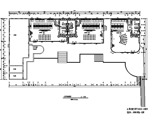
2500平米三层独栋幼儿园。采用现代的设计风格,对1-3层平面图(原始结构图,原始梁位图,墙体定位图,新增梁位图,平面布置图,吊顶布置图,吊顶、尺寸图,灯具定位图,面布置图,平面索引图)立面图(活动室,走廊,休息室,卫生间)进行初步设计

 

2500平米三层独栋<a href=https://www.yitu.cn/su/7587.html target=_blank class=infotextkey>幼儿园</a><a href=https://www.yitu.cn/su/7392.html target=_blank class=infotextkey>平面</a>图

 

2500平米三层独栋幼儿园平面

 

2500平米三层独栋<a href=https://www.yitu.cn/su/7587.html target=_blank class=infotextkey>幼儿园</a><a href=https://www.yitu.cn/su/7392.html target=_blank class=infotextkey>平面</a>图

 

2500平米三层独栋幼儿园平面

 

2500平米三层独栋<a href=https://www.yitu.cn/su/7587.html target=_blank class=infotextkey>幼儿园</a>立面图

 

2500平米三层独栋幼儿园立面图

 

2500平米三层独栋<a href=https://www.yitu.cn/su/7587.html target=_blank class=infotextkey>幼儿园</a>立面图

 

2500平米三层独栋幼儿园立面图

 

2500平米三层独栋<a href=https://www.yitu.cn/su/7587.html target=_blank class=infotextkey>幼儿园</a>立面图

 

2500平米三层独栋幼儿园立面图

 

2500平米三层独栋<a href=https://www.yitu.cn/su/7587.html target=_blank class=infotextkey>幼儿园</a>效果图

 

2500平米三层独栋幼儿园效果图

2500平米三层独栋幼儿园

ID:16974
软     件:sketchup 大     小:5.30MB 上 传 时 间:20191105 消 耗 积 分:30
  • 收藏 ()
  • 评论 ()
  • ⚠图纸报错

strawberry 普通会员

UI社UI社UI社UI社UI社UI社UI社UI社UI社UI社UI社UI社UI社
关注

上一篇:图书馆设计

下一篇:图书馆设计

SU模型、3D模型、贴图、材质、CAD施工图素材:

su模型,su素材库,3d模型,3d模型库,3d模型下载,3d模型素材,3dmax模型免费下载,cad施工图纸,3d材质贴图,沙发SU模型,椅凳SU模型,柜类SU模型,厨卫SU模型,3D沙发模型,3D陈设饰品,3D柜类模型,3D家装空间,家装CAD图纸,CAD图库,CAD节点详图,橱柜衣柜CAD图纸,CAD施工图,居住建筑效果图,工业建筑效果图,公共建筑效果图

友情链接 热门模型 免费模型