yituLogo
当前的位置:首页 > 室内CAD图纸 > cad > 公共区间 > 文体医疗 > 某康复医院水电暖全套详细施工图CAD图纸下载dwg文件下载

图纸介绍

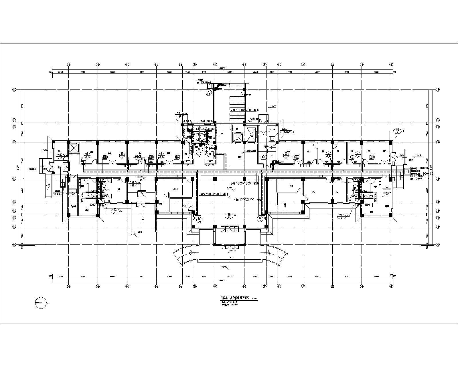
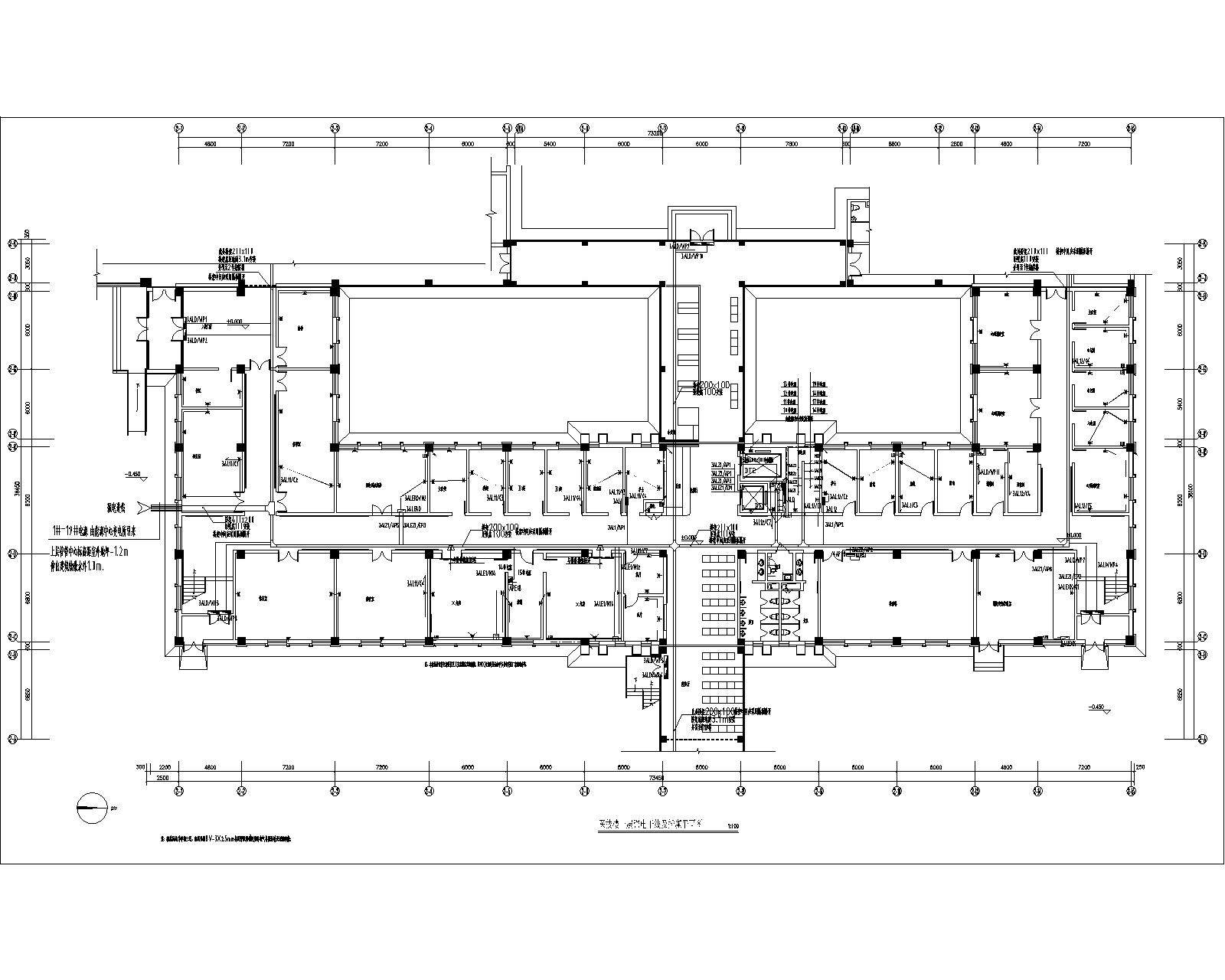
某康复医院电暖全套详细施工图CAD图纸下载dwg文件下载,全套详细施工图内大约有百余张CAD图纸,是十分详细的CAD图纸。里面的不仅仅有各种CAD图纸也有许多有关于图纸的文档。并且种类分类十分的详细。原创图大师su模型skb模型分享

某康复医院水电暖全套详细施工图CAD图纸下载dwg文件下载

ID:14298
软     件:sketchup 大     小:37.20MB 上 传 时 间:20190725 消 耗 积 分:30
  • 收藏 ()
  • 评论 ()
  • ⚠图纸报错

白桦树 普通会员

关注
  • 欧式别墅su模型下载、欧式别墅草图大师模型下载
  • 欧式别墅su模型下载、欧式别墅草图大师模型下载
  • 欧式别墅su模型下载、欧式别墅草图大师模型下载
SU模型、3D模型、贴图、材质、CAD施工图素材:

su模型,su素材库,3d模型,3d模型库,3d模型下载,3d模型素材,3dmax模型免费下载,cad施工图纸,3d材质贴图,沙发SU模型,椅凳SU模型,柜类SU模型,厨卫SU模型,3D沙发模型,3D陈设饰品,3D柜类模型,3D家装空间,家装CAD图纸,CAD图库,CAD节点详图,橱柜衣柜CAD图纸,CAD施工图,居住建筑效果图,工业建筑效果图,公共建筑效果图

友情链接 热门模型 免费模型