SUQQ群
QQ扫一扫
图纸深度:竣工图 项目位置:广东
设计风格:现代风格 图纸格式:JPG,CAD2000,PDF
包含图片:效果图
简介:深化方案、效果图、内装施工图(目录、平面图、立面图、大样图、门表等)、建筑图纸、官方摄影等,售楼处不只是一个临时搭建的售楼点,它是开发商向顾客展示自己楼旁质量的有效手段,一个质量好的售楼处能给购房者留下楼盘质量有保证的印象,促进销量。

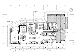
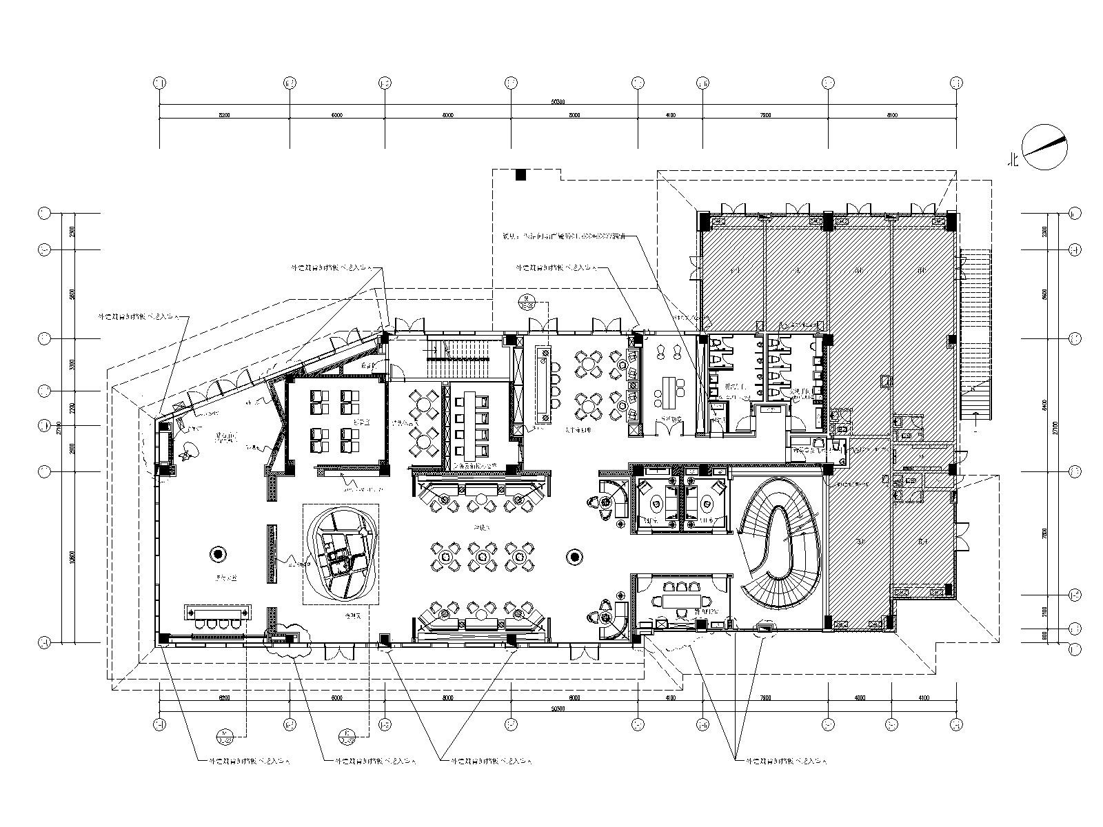
销售中心一层平面图

销售中心一层天花布置图

销售中心一层灯具尺寸图

销售中心一层地面材料图

销售中心一层间墙尺寸图

销售中心一层机电布置图

销售中心一层开关连线图

销售中心室内效果图1

销售中心室内效果图2

销售中心室内效果图3

总缩略图
su模型,su素材库,3d模型,3d模型库,3d模型下载,3d模型素材,3dmax模型免费下载,cad施工图纸,3d材质贴图,沙发SU模型,椅凳SU模型,柜类SU模型,厨卫SU模型,3D沙发模型,3D陈设饰品,3D柜类模型,3D家装空间,家装CAD图纸,CAD图库,CAD节点详图,橱柜衣柜CAD图纸,CAD施工图,居住建筑效果图,工业建筑效果图,公共建筑效果图
Copyright 易图网 2006-2025 All Rights Reserved ICP证:蜀ICP备2023015644号-6
四川鑫众焱信息技术服务有限公司| 地址:绵阳市涪城区瀚威城市中心1栋1单元42层2号