yituLogo
当前的位置:首页 > 室内CAD图纸 > cad > 商业空间 > 会所 > 旅游城温泉小镇室内装修图纸

图纸介绍

空间划分:成套商业                          空间类型:店铺

图纸深度:施工图                              设计风格:现代风格

图纸格式:JPG,CAD2000,PDF      层数:2层

设计时间:2018                                 包含图片:效果图

内容简介:日式馆、汤屋全套CAD施工图(平面图、立面图、节点图、大样图等)、日式馆+汤屋装修物料书及高清效果图等,商业空间设计中的橱所带来的视觉营销力是不容小觑的。引注目的视觉营销可以吸引购物者的注意力,并励他们走进商店消费。

 

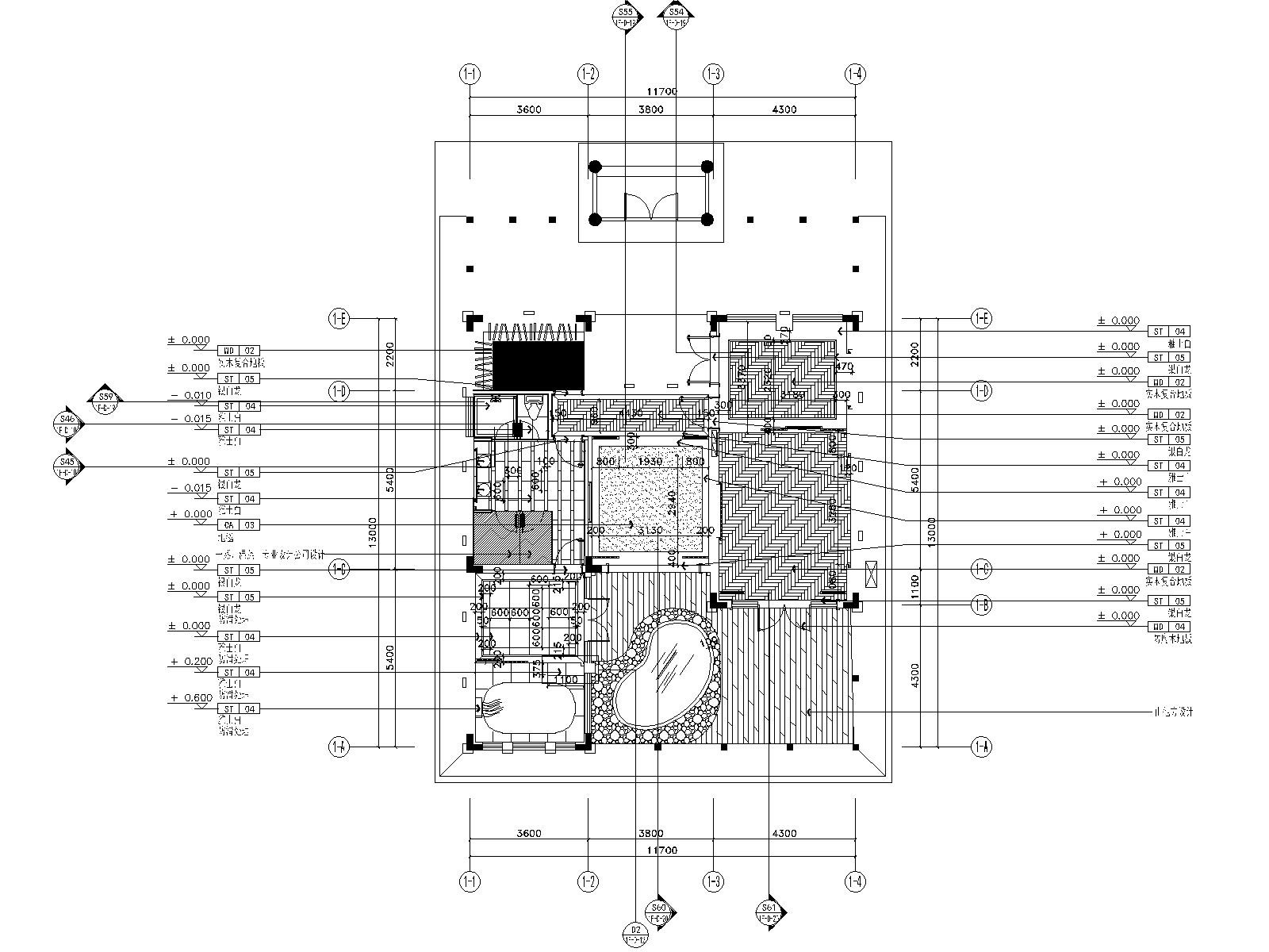
1日式I型汤屋家具布置图

 

家具布置图

 

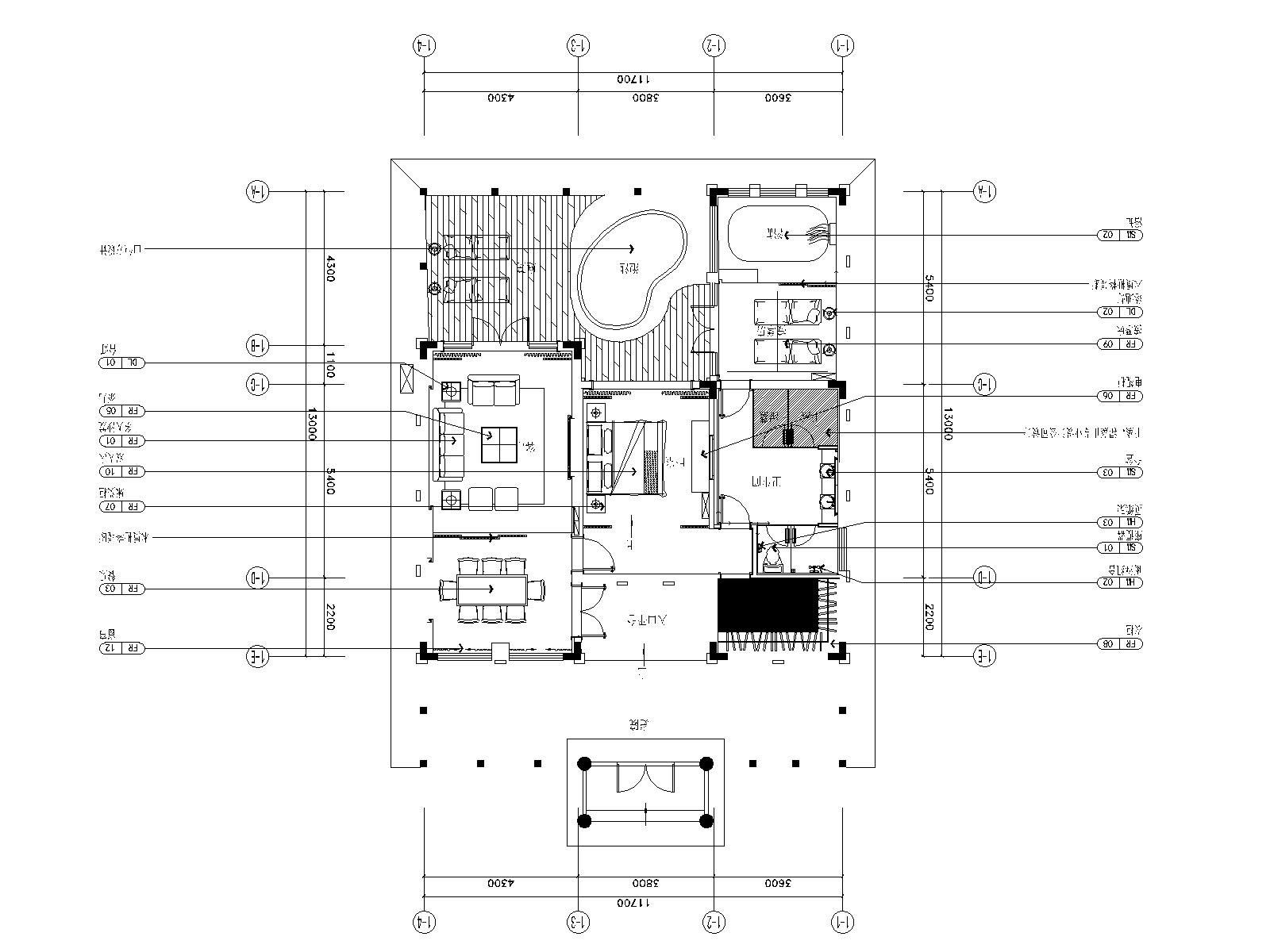
2日式馆主馆一层家具布置图

 

家具布置图

 

3总平-2F-P-02

 

家具布置图

 

2日式I型汤屋天顶布置图

 

天顶布置图

 

3日式I型汤屋<a href=https://www.yitu.cn/su/6833.html target=_blank class=infotextkey>灯具</a>定图

 

灯具定图

 

4日式I型汤屋<a href=https://www.yitu.cn/su/7872.html target=_blank class=infotextkey>地</a>坪布置图

 

坪布置图

 

5日式I型汤屋立面索引图

 

立面索引图

 

02首层大堂

 

首层大堂

 

03首层汇合<a href=https://www.yitu.cn/su/7996.html target=_blank class=infotextkey>大厅</a>

 

首层汇合大厅

 

04首层男宾更衣区

 

首层男宾更衣区

 

05首层男宾湿区

 

首层男宾湿区

 

06首层女宾湿区

 

首层女宾湿区

 

07二层<a href=https://www.yitu.cn/sketchup/xiuxiqu/index.html target=_blank class=infotextkey>休息区</a>

 

二层休息区

 

08二层VIP休息室

 

二层VIP休息室

旅游城温泉小镇室内装修图纸

ID:16765
软     件:sketchup 大     小:1.80MB 上 传 时 间:20191102 消 耗 积 分:30
  • 收藏 ()
  • 评论 ()
  • ⚠图纸报错

wangyiting QQ登陆会员

关注
SU模型、3D模型、贴图、材质、CAD施工图素材:

su模型,su素材库,3d模型,3d模型库,3d模型下载,3d模型素材,3dmax模型免费下载,cad施工图纸,3d材质贴图,沙发SU模型,椅凳SU模型,柜类SU模型,厨卫SU模型,3D沙发模型,3D陈设饰品,3D柜类模型,3D家装空间,家装CAD图纸,CAD图库,CAD节点详图,橱柜衣柜CAD图纸,CAD施工图,居住建筑效果图,工业建筑效果图,公共建筑效果图

友情链接 热门模型 免费模型