yituLogo
当前的位置:首页 > 室内CAD图纸 > cad > 商业空间 > 会所 > 萧山皇家国际娱乐会所CAD施工图套图,娱乐会所CAD建筑图纸下载

图纸介绍

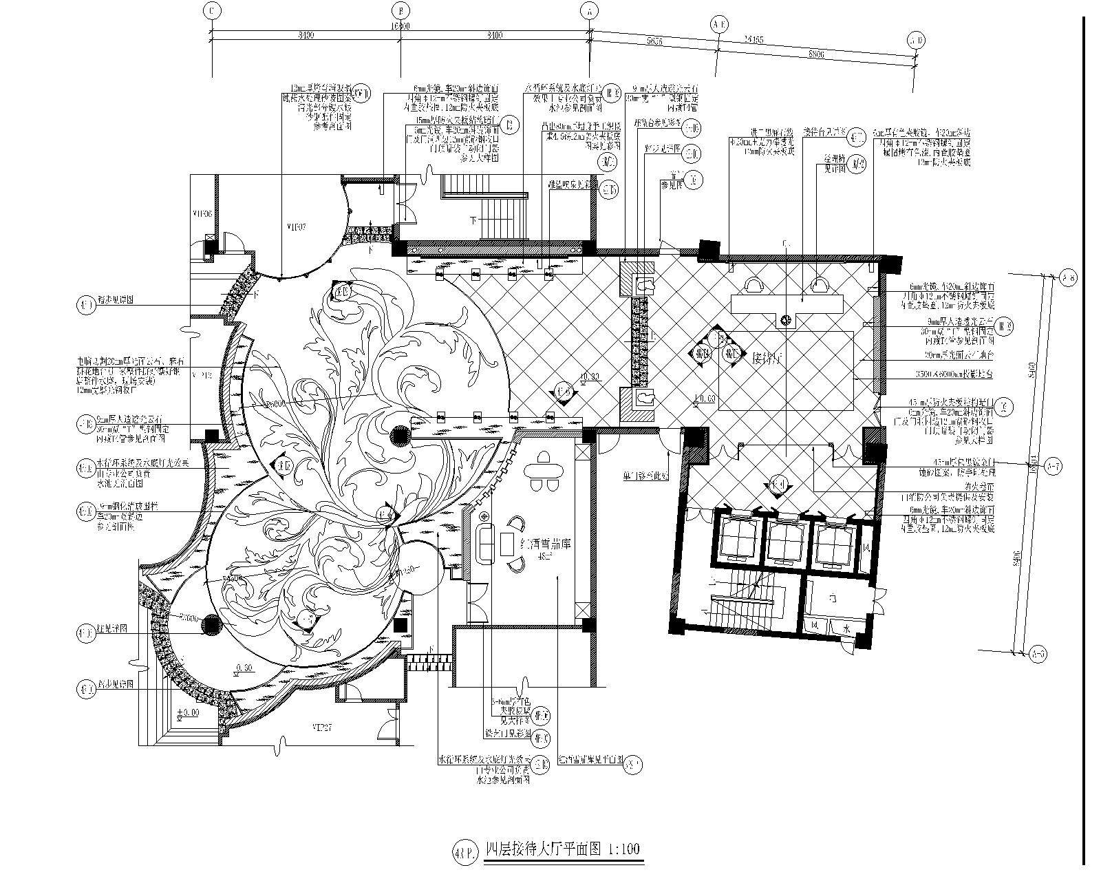
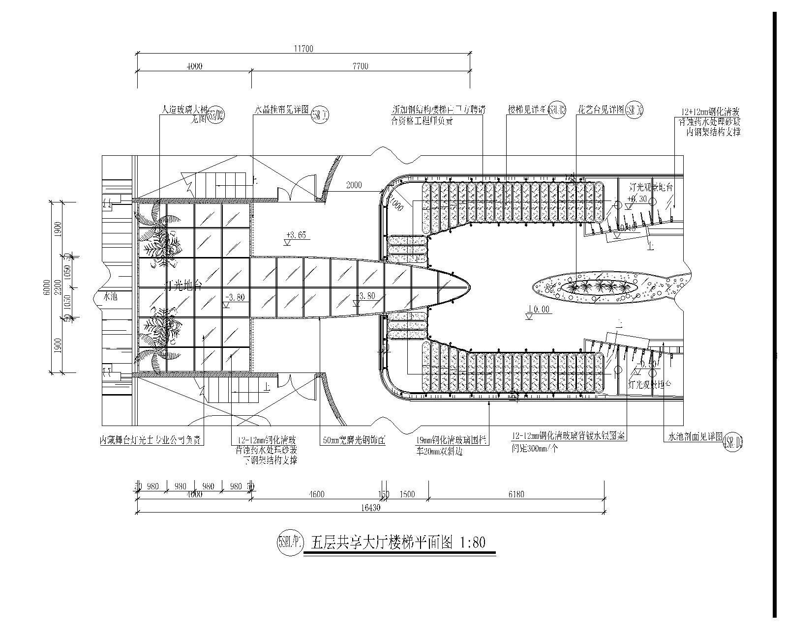
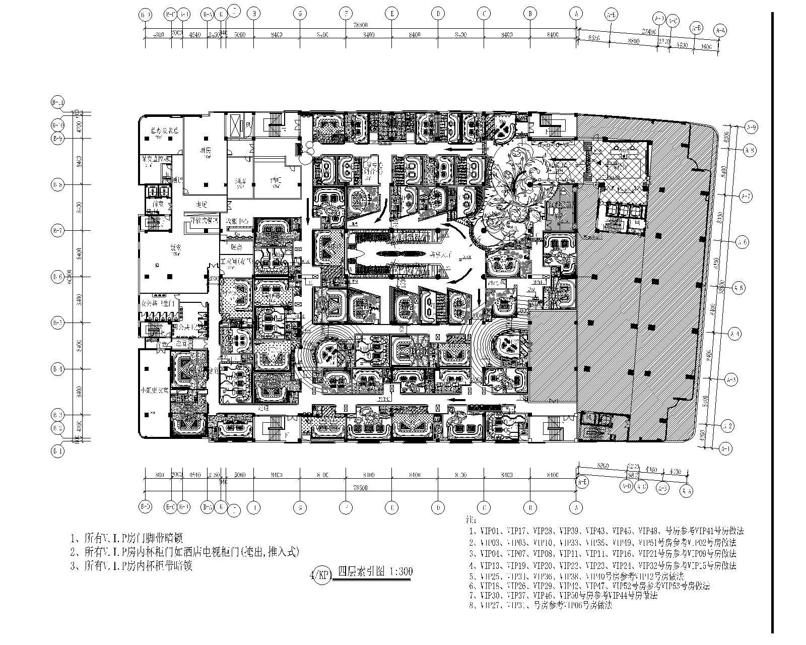
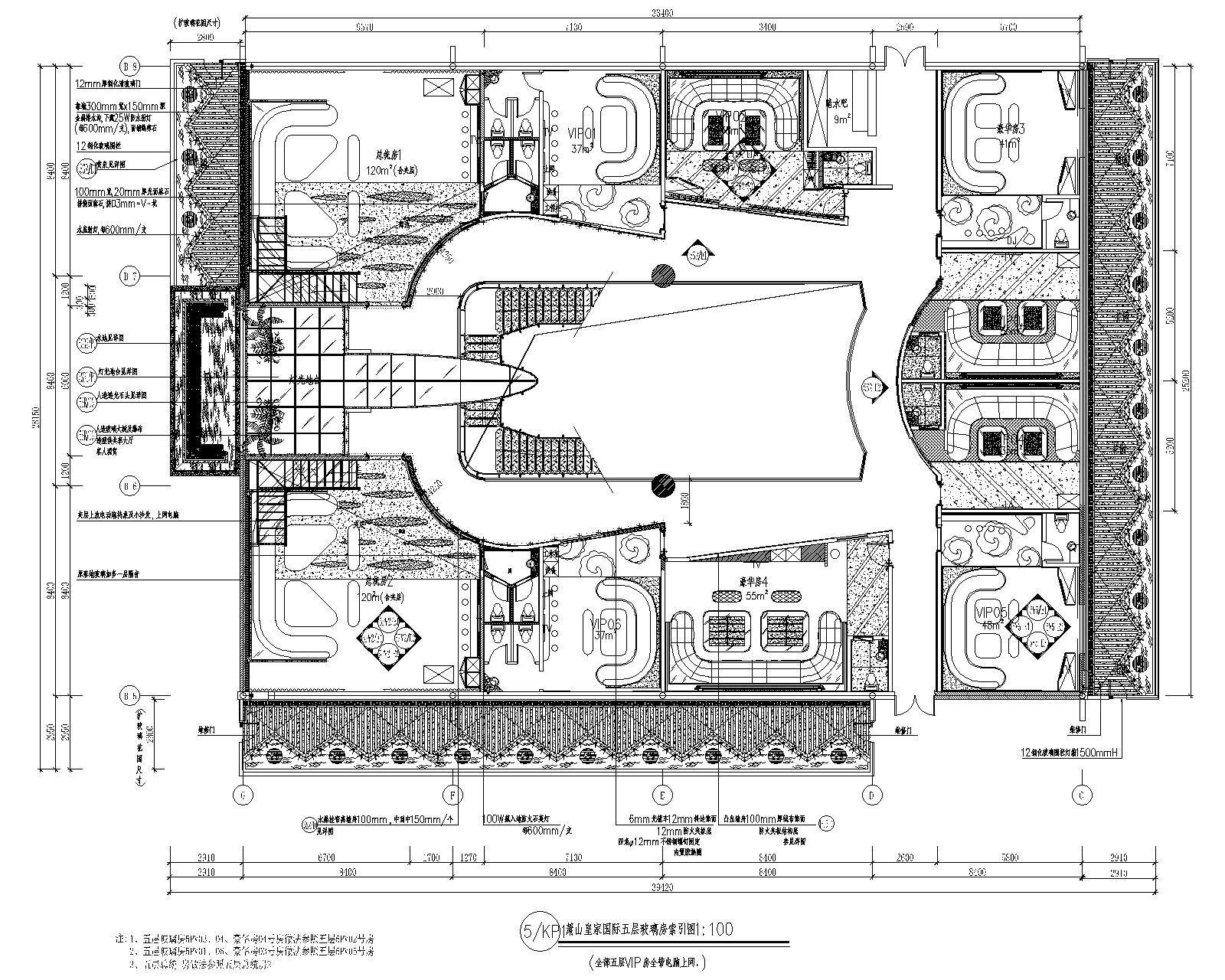
 萧皇家国际娱乐会所CAD施工图套图,超详细的娱乐会所建筑平面图立面图节点大样图可供下载,还有详细的材料说明能方便施工可以充分满足设计和施工需要。易图网为您提供下载服务,好看实用。

萧山皇家国际娱乐会所CAD施工图套图,娱乐会所CAD建筑图纸下载

ID:13992
软     件:sketchup 大     小:118.40MB 上 传 时 间:20190724 消 耗 积 分:30
  • 收藏 ()
  • 评论 ()
  • ⚠图纸报错

普通会员

关注
  • 欧式连排别墅草图大师模型,别墅sketchup模型免费下载
  • 欧式连排别墅草图大师模型,别墅sketchup模型免费下载
  • 欧式连排别墅草图大师模型,别墅sketchup模型免费下载
SU模型、3D模型、贴图、材质、CAD施工图素材:

su模型,su素材库,3d模型,3d模型库,3d模型下载,3d模型素材,3dmax模型免费下载,cad施工图纸,3d材质贴图,沙发SU模型,椅凳SU模型,柜类SU模型,厨卫SU模型,3D沙发模型,3D陈设饰品,3D柜类模型,3D家装空间,家装CAD图纸,CAD图库,CAD节点详图,橱柜衣柜CAD图纸,CAD施工图,居住建筑效果图,工业建筑效果图,公共建筑效果图

友情链接 热门模型 免费模型