yituLogo
当前的位置:首页 > 室内CAD图纸 > cad > 公共区间 > 公共空间 > 知名楼盘标准层电梯大堂施工图

图纸介绍

项目位置:广东                                       图纸格式:CAD2000

图纸深度:施工图                                   设计风格:现代风格

图纸张数:18张                                      设计时间:2007

内容简介:

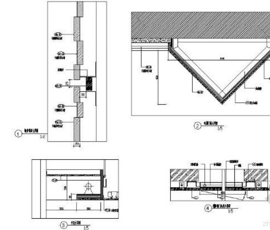
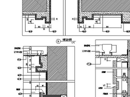
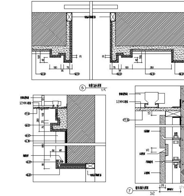
[广州]知名盘标准层电梯大堂施工图(18张) 。采用现代的设计风格,对电梯大堂(平面图、天图、插座图、各立面),首层大堂(平面图、天图、材图、插座图、电梯厅及大堂立面、信报箱立面)。详图大样(消防梯门、消防暗门、天电梯门套、装饰墙身) 进行初步设计

 

[广州]知名<a href=https://www.yitu.cn/su/8159.html target=_blank class=infotextkey>楼</a>盘标准层<a href=https://www.yitu.cn/sketchup/dianti/index.html target=_blank class=infotextkey><a href=https://www.yitu.cn/sketchup/diantizoulang/index.html target=_blank class=infotextkey>电梯</a></a>大堂施工图_1

 

图1

 

 

图2

 

 

图3

 

图5

 

图4

 

图6

 

图5

 

 

图6

知名楼盘标准层电梯大堂施工图

ID:16806
软     件:sketchup 大     小:1.10MB 上 传 时 间:20191104 消 耗 积 分:30
  • 收藏 ()
  • 评论 ()
  • ⚠图纸报错

strawberry 普通会员

UI社UI社UI社UI社UI社UI社UI社UI社UI社UI社UI社UI社UI社
关注
SU模型、3D模型、贴图、材质、CAD施工图素材:

su模型,su素材库,3d模型,3d模型库,3d模型下载,3d模型素材,3dmax模型免费下载,cad施工图纸,3d材质贴图,沙发SU模型,椅凳SU模型,柜类SU模型,厨卫SU模型,3D沙发模型,3D陈设饰品,3D柜类模型,3D家装空间,家装CAD图纸,CAD图库,CAD节点详图,橱柜衣柜CAD图纸,CAD施工图,居住建筑效果图,工业建筑效果图,公共建筑效果图

友情链接 热门模型 免费模型