yituLogo
当前的位置:首页 > 室内CAD图纸 > cad > 公共区间 > 公共空间 > 看守所营房室内装修设计施工图

图纸介绍

空间划分:成套图纸                                      功能类型:其他

图纸深度:施工图                                         项目位置:湖南

设计风格:现代风格                                      图纸格式:CAD2000

图纸张数:156张                                          设计时间:2015年

内容简介

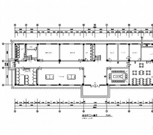
[湖南]看守所营房室内装设计施工图。采用现代的设计风格,对天布置图、灯具尺寸图、墙面材料及立面索引图、照明布置图、平面及天布置图:(勤务值班室、荣誉室、网络学习室、心理咨询师、视频会议室医院透视室、备勤食堂、厨房等进行设计完善。

 

[湖南]看守所营房室<a href=https://www.yitu.cn/su/7634.html target=_blank class=infotextkey>内装</a>修<a href=https://www.yitu.cn/su/7590.html target=_blank class=infotextkey>设计</a>施工图

 

效果图

 

[湖南]看守所营房室<a href=https://www.yitu.cn/su/7634.html target=_blank class=infotextkey>内装</a>修<a href=https://www.yitu.cn/su/7590.html target=_blank class=infotextkey>设计</a>施工图门厅立面图

 

[湖南]看守所营房室内装设计施工图门厅立面图

 

[湖南]看守所营房室<a href=https://www.yitu.cn/su/7634.html target=_blank class=infotextkey>内装</a>修<a href=https://www.yitu.cn/su/7590.html target=_blank class=infotextkey>设计</a>施工图<a href=https://www.yitu.cn/su/7996.html target=_blank class=infotextkey>大厅</a>立面图

 

[湖南]看守所营房室内装设计施工图大厅立面图

 

[湖南]看守所营房室<a href=https://www.yitu.cn/su/7634.html target=_blank class=infotextkey>内装</a>修<a href=https://www.yitu.cn/su/7590.html target=_blank class=infotextkey>设计</a>施工图勤务值班室立面图

 

[湖南]看守所营房室内装设计施工图勤务值班室立面图

 

[湖南]看守所营房室<a href=https://www.yitu.cn/su/7634.html target=_blank class=infotextkey>内装</a>修<a href=https://www.yitu.cn/su/7590.html target=_blank class=infotextkey>设计</a>施工图荣誉室立面图

 

[湖南]看守所营房室内装设计施工图荣誉室立面图

 

[湖南]看守所营房室<a href=https://www.yitu.cn/su/7634.html target=_blank class=infotextkey>内装</a>修<a href=https://www.yitu.cn/su/7590.html target=_blank class=infotextkey>设计</a>施工图<a href=https://www.yitu.cn/sketchup/dianti/index.html target=_blank class=infotextkey><a href=https://www.yitu.cn/sketchup/diantizoulang/index.html target=_blank class=infotextkey>电梯</a></a>厅立面图

 

[湖南]看守所营房室内装设计施工图电梯厅立面图

 

[湖南]看守所营房室<a href=https://www.yitu.cn/su/7634.html target=_blank class=infotextkey>内装</a>修<a href=https://www.yitu.cn/su/7590.html target=_blank class=infotextkey>设计</a>施工图<a href=https://www.yitu.cn/sketchup/bangongshi/index.html target=_blank class=infotextkey>办公室</a>立面图

 

[湖南]看守所营房室内装设计施工图办公室立面图

 

[湖南]看守所营房室<a href=https://www.yitu.cn/su/7634.html target=_blank class=infotextkey>内装</a>修<a href=https://www.yitu.cn/su/7590.html target=_blank class=infotextkey>设计</a>施工图<a href=https://www.yitu.cn/sketchup/jiedaishi/index.html target=_blank class=infotextkey>接待室</a>立面图

 

[湖南]看守所营房室内装设计施工图接待室立面图

 

[湖南]看守所营房室<a href=https://www.yitu.cn/su/7634.html target=_blank class=infotextkey>内装</a>修<a href=https://www.yitu.cn/su/7590.html target=_blank class=infotextkey>设计</a>施工图中心<a href=https://www.yitu.cn/sketchup/huiyishi/index.html target=_blank class=infotextkey>会议室</a>立面图

 

[湖南]看守所营房室内装设计施工图中心会议室立面图

看守所营房室内装修设计施工图

ID:16506
软     件:sketchup 大     小:31.10MB 上 传 时 间:20191031 消 耗 积 分:30
  • 收藏 ()
  • 评论 ()
  • ⚠图纸报错

strawberry 普通会员

UI社UI社UI社UI社UI社UI社UI社UI社UI社UI社UI社UI社UI社
关注
SU模型、3D模型、贴图、材质、CAD施工图素材:

su模型,su素材库,3d模型,3d模型库,3d模型下载,3d模型素材,3dmax模型免费下载,cad施工图纸,3d材质贴图,沙发SU模型,椅凳SU模型,柜类SU模型,厨卫SU模型,3D沙发模型,3D陈设饰品,3D柜类模型,3D家装空间,家装CAD图纸,CAD图库,CAD节点详图,橱柜衣柜CAD图纸,CAD施工图,居住建筑效果图,工业建筑效果图,公共建筑效果图

友情链接 热门模型 免费模型