yituLogo
当前的位置:首页 > 室内CAD图纸 > cad > 公共区间 > 公共空间 > 【CAD图纸】无锡惜福寺观音殿 CAD施工图+效果图

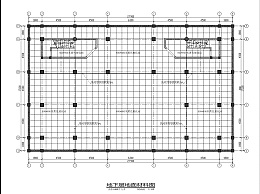
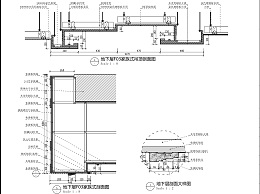
【CAD图纸】无锡惜福寺观音殿 CAD施工图+效果图

ID:114383
软     件:sketchup 大     小:112.88MB 上 传 时 间:20250211 消 耗 积 分:25
  • 收藏 ()
  • 评论 ()
  • ⚠图纸报错

jishu 普通会员

关注
  • 电器展厅
  • 油漆展厅
  • 家具展厅
SU模型、3D模型、贴图、材质、CAD施工图素材:

su模型,su素材库,3d模型,3d模型库,3d模型下载,3d模型素材,3dmax模型免费下载,cad施工图纸,3d材质贴图,沙发SU模型,椅凳SU模型,柜类SU模型,厨卫SU模型,3D沙发模型,3D陈设饰品,3D柜类模型,3D家装空间,家装CAD图纸,CAD图库,CAD节点详图,橱柜衣柜CAD图纸,CAD施工图,居住建筑效果图,工业建筑效果图,公共建筑效果图

友情链接 热门模型 免费模型