SUQQ群
QQ扫一扫
建筑功能:工业建筑 结构形式:钢筋混凝土结构
建筑面积:754㎡ 地上层数:1层
图纸深度:施工图 负荷等级:一级,三级
火灾保护分级:二级 强电设计:低压配电,电气照明,建筑物防雷,接地安全
一、工程概况
本工程总面积754m3。地上一层,建筑高度6.90m。建筑耐火等级为二级。结构形式为现浇钢筋混凝土框架结构。
二、设计范围
电力配电系统,照明系统,建筑物防雷、接地系统。
三、电力配电系统
建筑物内应急照明为一级负荷,其它用电负荷为三级。本工程采用放射式与树干式相结合的配电方式。220/380V电源引自本动力站内变电所。本工程配电干线均采用交联聚乙烯电缆,套钢管埋地敷设。插座配电回路采用剩余电流保护器保护,剩余电流整定为30mA,动作时间不大于0.4秒。插座配电回路采用铜芯塑料线(BV-450/750V)套钢管埋地敷设。自带控制箱的设备本设计只配电到控制箱,控制箱之后的线路由设备厂家确定。
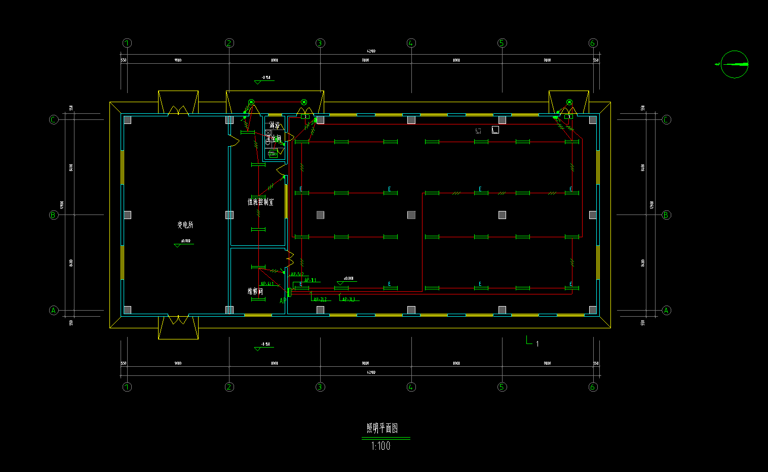
四、照明
本工程照明光源以T8直管荧光灯为主。荧光灯吸顶安装。制冷站照度为150Lx,值班室照度为300Lx,其余各房间照度按照国家规范确定。制冷机房设置应急照明。荧光灯均加装电子镇流器,功率因数不低于0.9,且应符合国家能效标准。T8荧光灯管(36W)光通量不小于3350Lm,其显色指数Ra>80,色温3000~4000K。照明配电线路均采用BV-450/750型铜芯塑料线,沿墙或顶板暗敷。铜芯塑料线截面均为2.5mm。
套钢管规格:2~3根套%%c15mm的钢管,4~5根套%%c20mm的钢管,6~7根套%%c25mm的钢管。平面图中标有"E"的为应急照明灯具,应急照明灯具和疏散、出口指示灯自带蓄电池,持续供电时间不小于30分钟。Ⅰ类灯具应在平面图标注的基础上加装一根PE线,套管管径相应调整。出口指示灯安装在门的正上方,底距门上沿0.1米。
六、节能
疏散指示灯采用LED光源。
部分图纸展示:

防雷平面图


配电系统图二

配电系统图一

弱电平面图

网络系统图
会员在本站下载的原创CAD图库后,只拥有CAD图库的使用权,著作权归原作者及易图网所有。未经合法授权,会员不得以任何形式发布、传播、复制、转售该CAD图库。特别地,不得擅自以易图网名义或使用"易图"、"易图网"(本站注册商标)名称发布、复制、转售所下载的CAD图库,由此给本站造成损害的,本站将依法追究其相关法律责任。
Copyright 易图网 2006-2025 All Rights Reserved ICP证:蜀ICP备2023015644号-6
四川鑫众焱信息技术服务有限公司| 地址:绵阳市涪城区瀚威城市中心1栋1单元42层2号