SUQQ群
QQ扫一扫
建筑功能:教育 高度类别:高层建筑
结构形式:其他结构 建筑面积:39453.615㎡
负荷等级:一级,三级 防雷等级:第二类
接地方式:TN-S 项目位置:广东
强电设计:供配电系统,配变电所,低压配电,电气照明,建筑物防雷,其它
概况:
本工程为广东省某知名大学知识产权人才基地建设项目。总建筑面积约39453.615平方米 ,地下2层,地上15层。建筑主体高度为73.6m。地下室由人防和非人防两部分组成。结构形式为框架-抗震墙结构 ;基础形式为预应力管桩基础。
设计范围:
(1)变配电系统(2)照明系统
(3)建筑物防雷(4)火灾自动报警系统
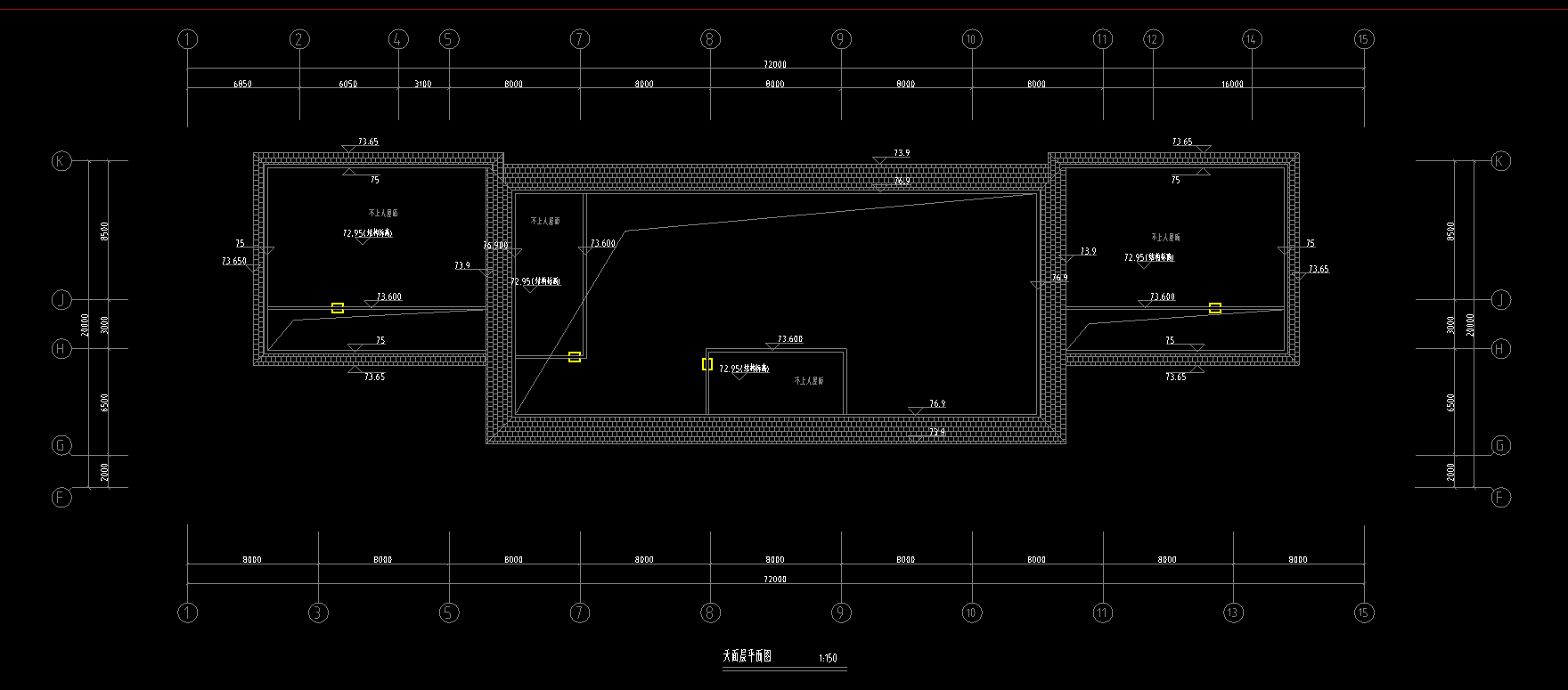
部分图纸展示:

配电平面图

配电平面图

配电平面图

配电平面图

配电平面图
会员在本站下载的原创CAD图库后,只拥有CAD图库的使用权,著作权归原作者及易图网所有。未经合法授权,会员不得以任何形式发布、传播、复制、转售该CAD图库。特别地,不得擅自以易图网名义或使用"易图"、"易图网"(本站注册商标)名称发布、复制、转售所下载的CAD图库,由此给本站造成损害的,本站将依法追究其相关法律责任。
Copyright 易图网 2006-2025 All Rights Reserved ICP证:蜀ICP备2023015644号-6
四川鑫众焱信息技术服务有限公司| 地址:绵阳市涪城区瀚威城市中心1栋1单元42层2号