yituLogo
当前的位置:首页 > 文本 > 硬装方案文本 > 样板间 > 牧笛万科扬州翡翠府别墅PPT设计方案

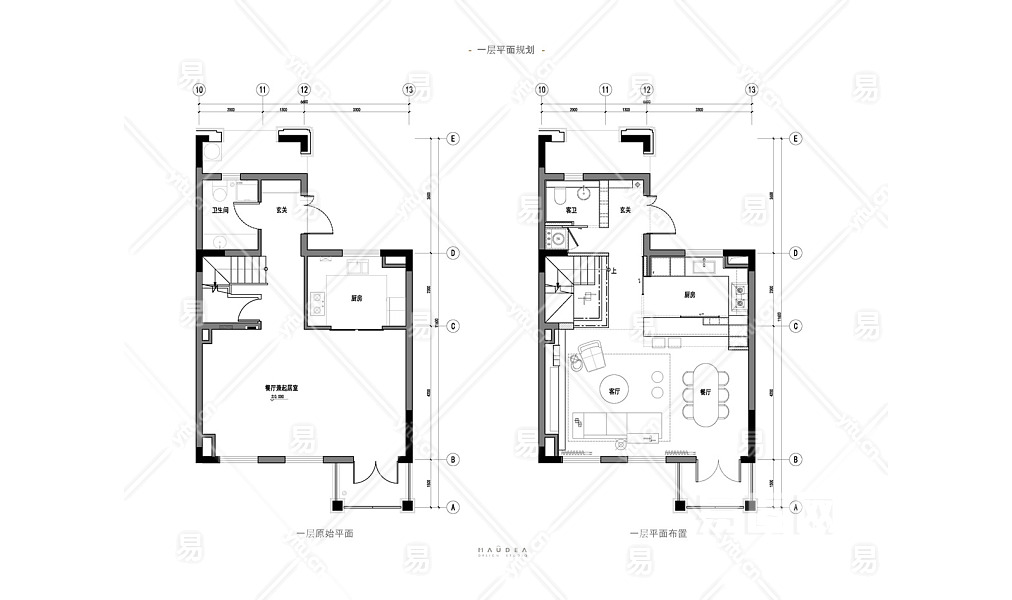
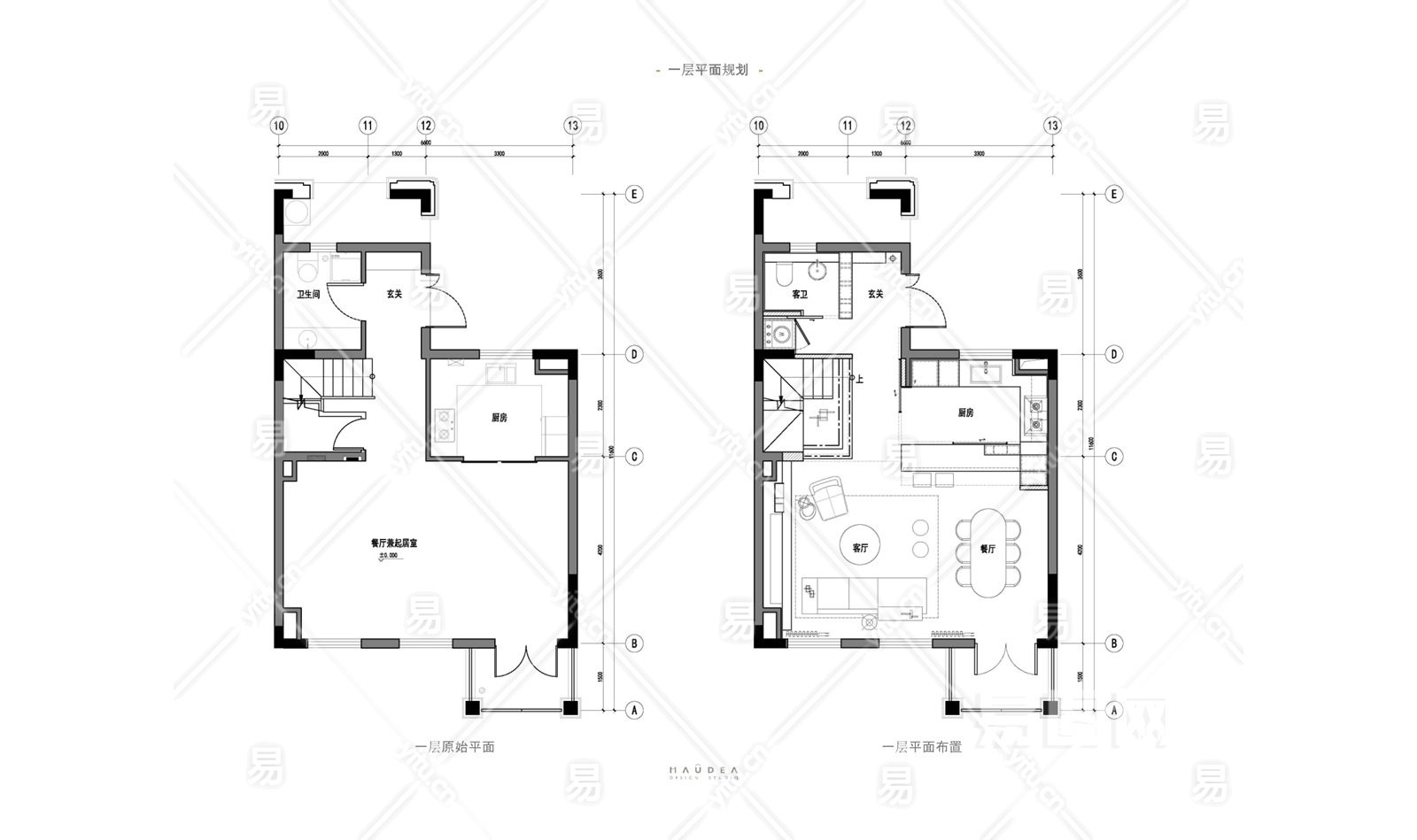
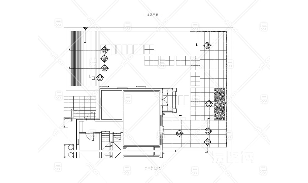
牧笛万科扬州翡翠府别墅PPT设计方案

收藏 ()
ID:7565
文  件  格  式PPTX(41)页 大        小19.17MB 设计师 / 机构牧笛 上  传  时  间20241203
24 图币
VIP专享价 0图币
友情链接 热门模型 免费模型