yituLogo
当前的位置:首页 > 文本 > 建筑文本 > 办公工业建筑 > 南昌赣电中心酒店办公综合体规划及建筑方案

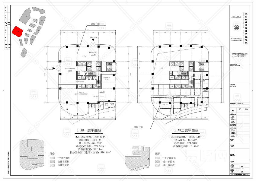
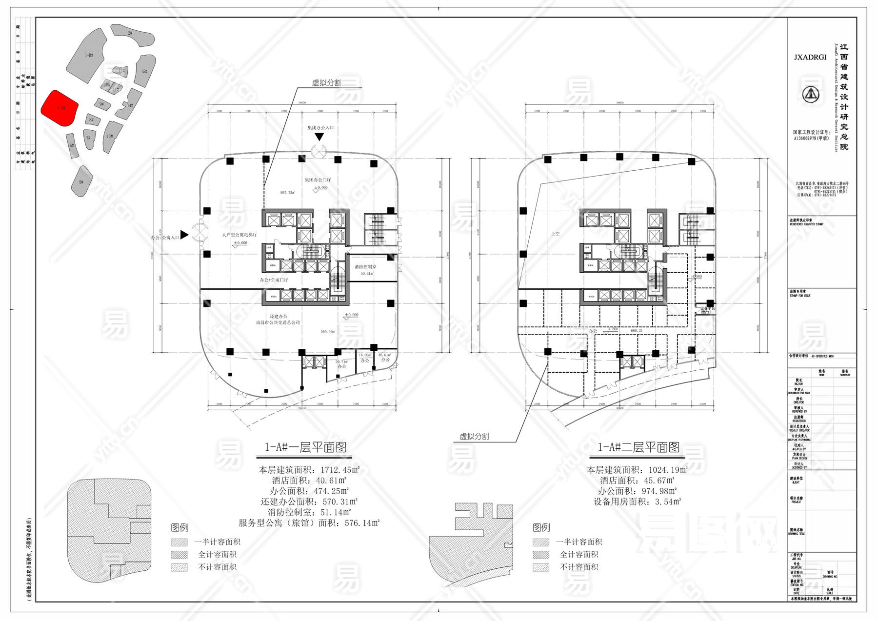
南昌赣电中心酒店办公综合体规划及建筑方案

收藏 ()
ID:6802
文  件  格  式PDF(未知)页 大        小128.10MB 设计师 / 机构未知 上  传  时  间20241202
24 图币
VIP专享价 0图币
友情链接 热门模型 免费模型