yituLogo
当前的位置:首页 > 文本 > 建筑文本 > 居住建筑 > 皖新芜湖地块居住建筑方案文本

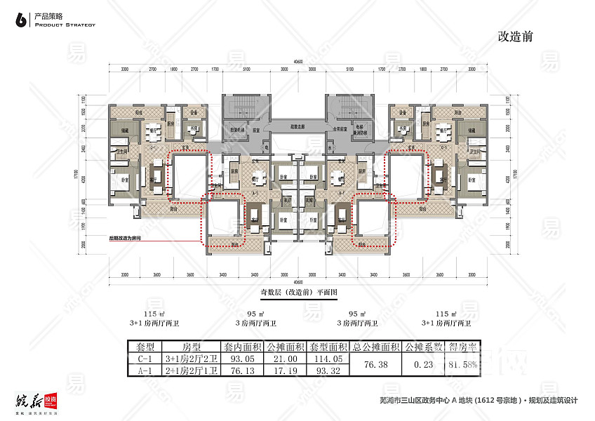
皖新芜湖地块居住建筑方案文本

收藏 ()
ID:6518
文  件  格  式PDF(未知)页 大        小63.89MB 设计师 / 机构未知 上  传  时  间20241129
24 图币
VIP专享价 0图币
友情链接 热门模型 免费模型