yituLogo
当前的位置:首页 > 文本 > 建筑文本 > 居住建筑 > 保定上林溪园居住建筑方案文本

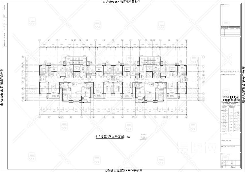
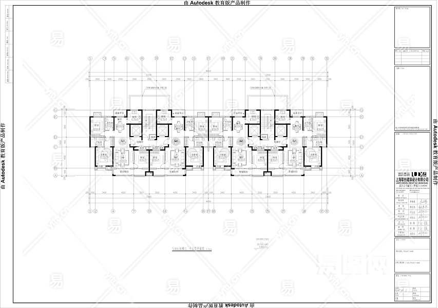
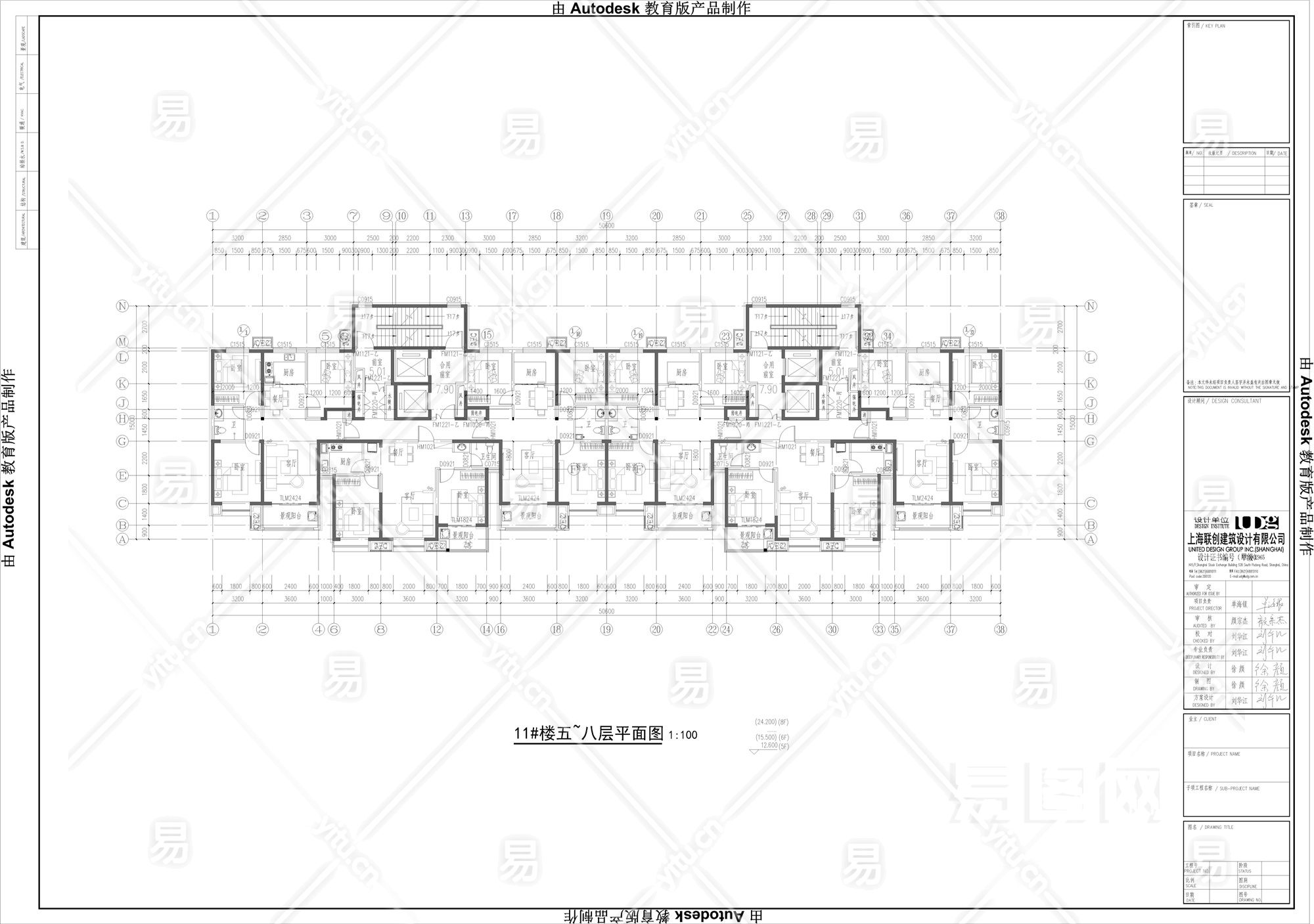
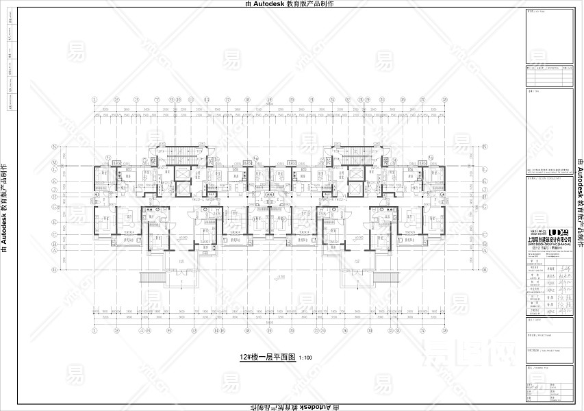
保定上林溪园居住建筑方案文本

收藏 ()
ID:6336
文  件  格  式PPT/PDF(未知)页 大        小0.00MB 设计师 / 机构未知 上  传  时  间20241129
24 图币
VIP专享价 0图币
友情链接 热门模型 免费模型