yituLogo
当前的位置:首页 > 文本 > 硬装方案文本 > 展厅 > 中国海盐博物馆展陈方案设计方案PPT

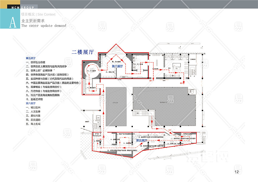
中国海盐博物馆展陈方案设计方案PPT

收藏 ()
ID:5918
文  件  格  式PPTX(140)页 大        小30.32MB 设计师 / 机构未知 上  传  时  间20241128
24 图币
VIP专享价 0图币
友情链接 热门模型 免费模型