yituLogo
当前的位置:首页 > 文本 > 硬装方案文本 > 售楼处 > 龙湖蔡家P01项目PPT深化设计28页

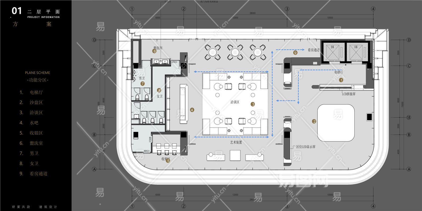
龙湖蔡家P01项目PPT深化设计28页

收藏 ()
ID:5132
文  件  格  式PPTX(28)页 大        小25.43MB 设计师 / 机构未知 上  传  时  间20241127
24 图币
VIP专享价 0图币
友情链接 热门模型 免费模型