yituLogo
当前的位置:首页 > 文本 > 硬装方案文本 > 售楼处 > 集艾·杭州绿都南湖售楼处PPT深化方案34页

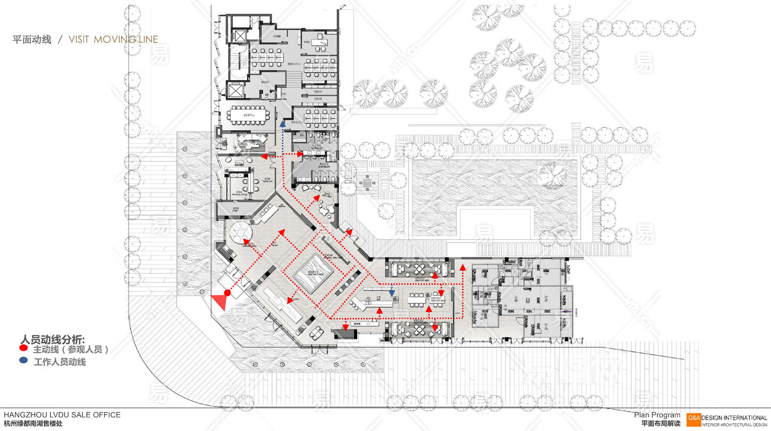
集艾·杭州绿都南湖售楼处PPT深化方案34页

收藏 ()
ID:5043
文  件  格  式PPTX(34)页 大        小27.29MB 设计师 / 机构集艾 上  传  时  间20241127
24 图币
VIP专享价 0图币
友情链接 热门模型 免费模型