yituLogo
当前的位置:首页 > 文本 > 景观文本 > 道路街区 > 景观改造设计施工图

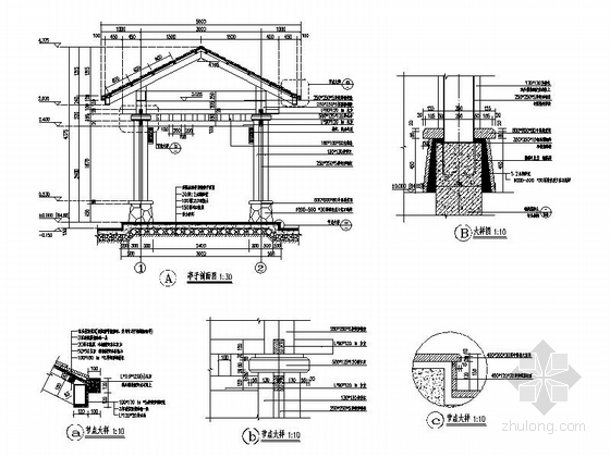
景观改造设计施工图

收藏 ()
ID:500
文  件  格  式2008 大        小9.80MB 设计师 / 机构yitu 上  传  时  间20190925
30 图币
VIP专享价 0图币
友情链接 热门模型 免费模型