yituLogo
当前的位置:首页 > 文本 > 硬装方案文本 > 售楼处 > 石家庄保晋南街售楼处样板房PPT概念方案

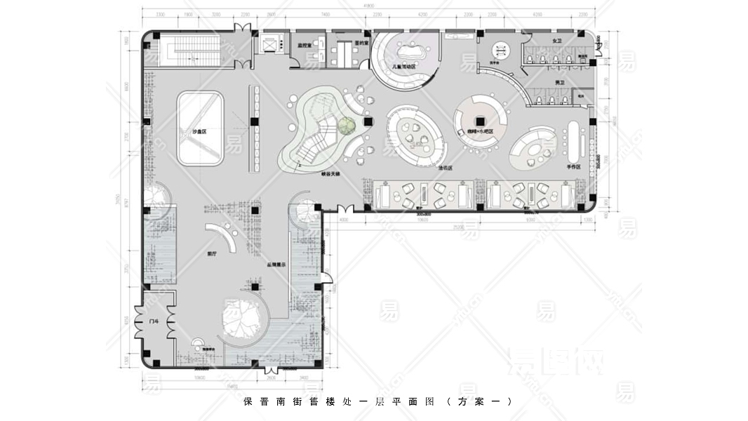
石家庄保晋南街售楼处样板房PPT概念方案

收藏 ()
ID:4946
文  件  格  式PPTX(104)页 大        小15.46MB 设计师 / 机构未知 上  传  时  间20241126
24 图币
VIP专享价 0图币
友情链接 热门模型 免费模型