yituLogo
当前的位置:首页 > 文本 > 硬装方案文本 > 酒店民宿 > 珠海丽芮酒店PPT概念方案

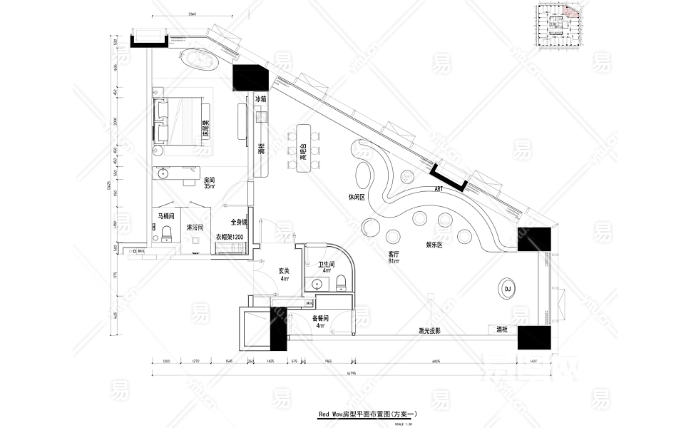
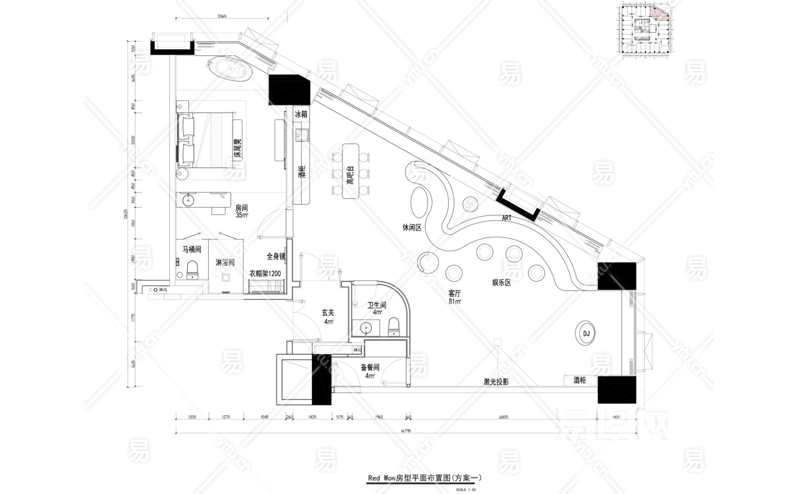
珠海丽芮酒店PPT概念方案

收藏 ()
ID:4331
文  件  格  式PPTX(11)页 大        小19.66MB 设计师 / 机构未知 上  传  时  间20241126
24 图币
VIP专享价 0图币
友情链接 热门模型 免费模型