yituLogo
当前的位置:首页 > 文本 > 硬装方案文本 > 别墅 > 金螳螂阳光檀苑大平层超级豪宅300M²PPT设计方案

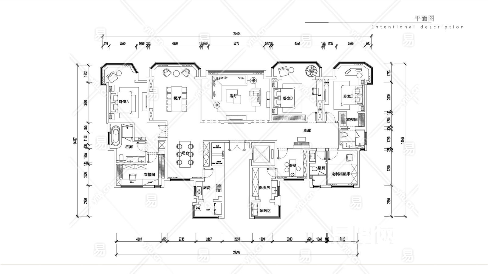
金螳螂阳光檀苑大平层超级豪宅300M²PPT设计方案

收藏 ()
ID:4128
文  件  格  式PPTX(22)页 大        小15.85MB 设计师 / 机构金螳螂 上  传  时  间20241125
24 图币
VIP专享价 0图币
友情链接 热门模型 免费模型