yituLogo
当前的位置:首页 > 文本 > 硬装方案文本 > 样板间 > 无间广州增城荔湖别墅PPT设计方案

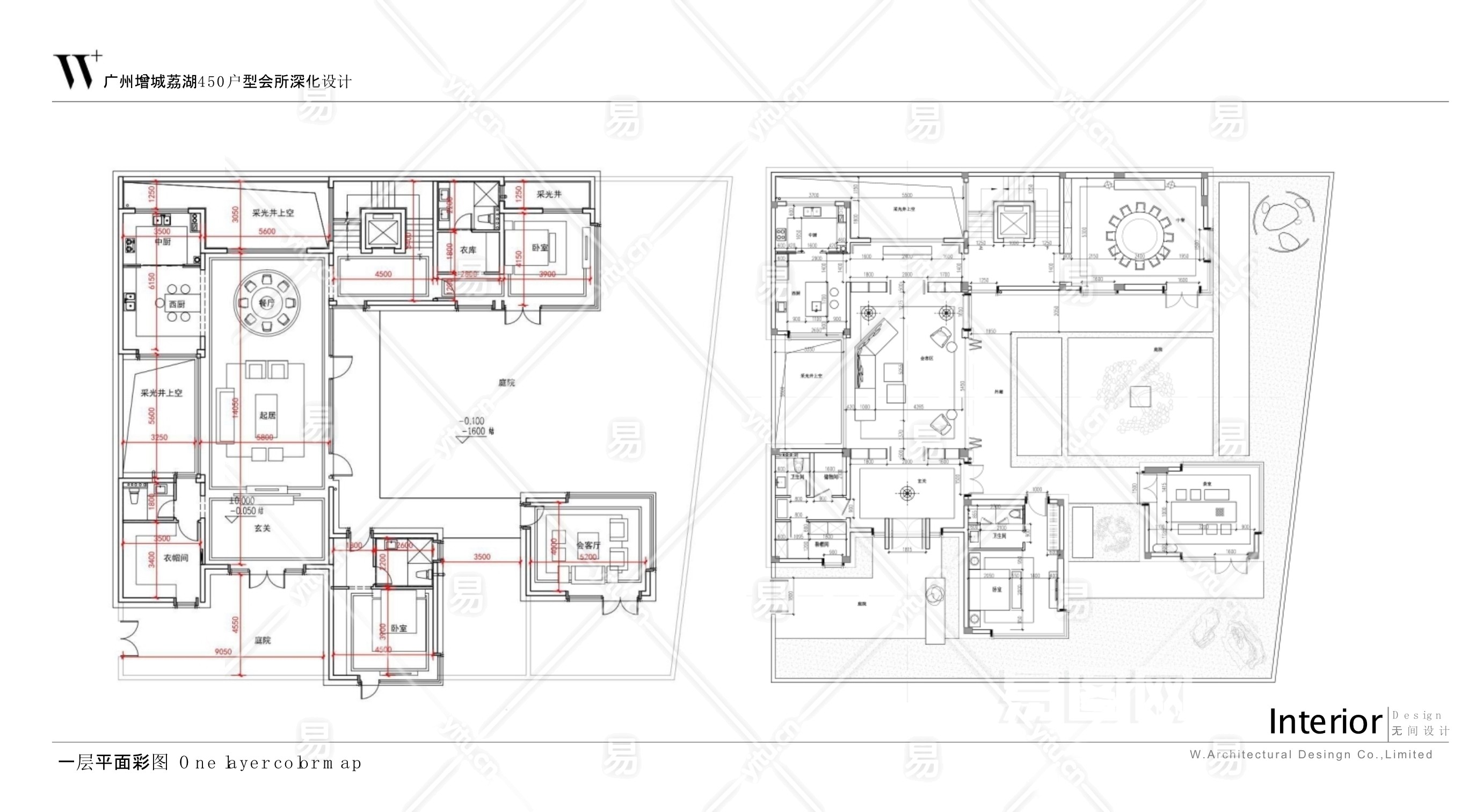
无间广州增城荔湖别墅PPT设计方案

收藏 ()
ID:4023
文  件  格  式PPTX(61)页 大        小61.83MB 设计师 / 机构无间 上  传  时  间20241125
24 图币
VIP专享价 0图币
友情链接 热门模型 免费模型